问题不能为空!快去添加问题吧!

齐家网 > 装修设计 > 上海装修 > 上海装修案例 > 简约

简约

120㎡ 复式 北欧 恋日绿岛
造价:
22万

这是一套没有电视机的房子,一套可以在家里和宝宝一起玩耍的房子,一套餐桌超级大的房子。看不完的书、画不完的画、学不完的新技能,全职妈妈的居家生活不紧不慢,有家有孩子也有自我。

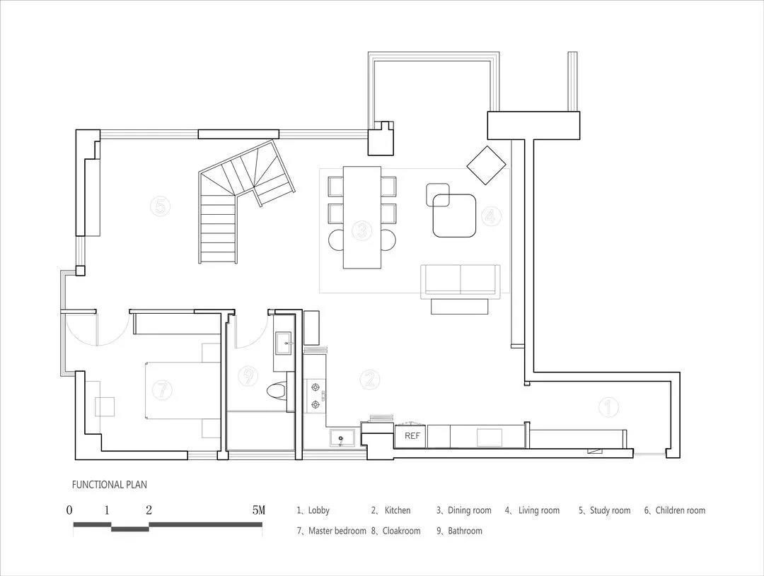
  • 全屋户型图

    这是一套没有电视机的房子,一套可以在家里和宝宝一起玩耍的房子,一套餐桌超级大的房子。看不完的书、画不完的画、学不完的新技能,全职妈妈的居家生活不紧不慢,有家有孩子也有自我。

  • 客厅

    客厅光线充足,明亮,随处可见的收纳柜让储物变得更轻松。

    中西厨分离,中厨空间用玻璃折叠门代替墙,大大增加了空间的采光,让整体变得通透、明亮。

    圆盘似的吊灯打破了空间的局限,装饰感十足。长方形原木餐桌搭配黄绿色、砖红色、灰色餐椅,再用花束和果实点缀,一眼就让人感觉住进了氧气十足的森林里。

  • 卧室

    主卧使用摩洛哥蓝刷墙,与玄关背景同色,整体装修形成呼应。金属材质床头灯增加空间质感,蓝白灰相间的床品有种水墨山海的意境。

    女儿房偏公主风,粉色的墙面和小碎花床品,都是妈妈对宝宝的浓浓爱意。

    主卧使用摩洛哥蓝刷墙,与玄关背景同色,整体装修形成呼应。金属材质床头灯增加空间质感,蓝白灰相间的床品有种水墨山海的意境。

    儿子的房间,整理设计比较简约,以实用性和安全性为主,没有做过多的装修。

  • 厨房

    卫生间营造了***彩明亮、干净舒适的氛围。整体采用铺砖,在一面墙中做了区分,形成对比,更具品质感。大理石台面、悬挂式马桶等也更方便清洁和日常打理。

< >

三源里

荣丰2008

日式诧寂风

法式复古

意式极简

沪ICP备13002314号-1 沪B2-20170342 组织机构代码证:66439109—1

中国互联网协会信用评价中心网信认证 网信编码:1664391091 举报电话:400-660-7700

齐家网 版权所有Copyright © 2005- www.jia.com All rights reserved

回到顶部

扫一扫,关注我们

齐家官方微信

温馨提示

取消 同意并继续