问题不能为空!快去添加问题吧!

齐家网 > 装修设计 > 上海装修 > 上海装修案例 > 意式极简风

意式极简风

180㎡ 复式 简约 山海原著上宸
造价:
15.6万

走进这复式的小天地,仿佛置身于一个充满温馨与浪漫的世界。 两层空间,双倍享受 复式的设计,不仅增加了居住面积,更让空间层次更加丰富。楼上楼下,动静分明,既保证了生活的私密性,又使得空间更加灵活多变。 功能分区,随心所欲 在复式户型中,你可以随心所欲地规划自己的功能区域。一楼可以是宽敞明亮的客厅和餐厅,二楼则是温馨的卧室和书房。每个区域都能满足你的不同需求,让你的家更加舒适自在。

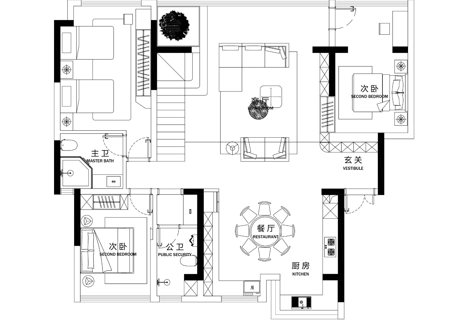
  • 全屋户型图

    走进这复式的小天地,仿佛置身于一个充满温馨与浪漫的世界。 两层空间,双倍享受 复式的设计,不仅增加了居住面积,更让空间层次更加丰富。楼上楼下,动静分明,既保证了生活的私密性,又使得空间更加灵活多变。 功能分区,随心所欲 在复式户型中,你可以随心所欲地规划自己的功能区域。一楼可以是宽敞明亮的客厅和餐厅,二楼则是温馨的卧室和书房。每个区域都能满足你的不同需求,让你的家更加舒适自在。

  • 客厅

    选择简洁大方的家具,沙发和茶几的组合突显空间的宽敞感

    采用开放式设计,连接餐厅和厨房,形成一个流畅的活动空间

  • 卧室

    合理安排储物空间,确保卧室的整洁和有序

  • 厨房

    简介大方,注重实用性,通过细节提升整体美观

  • 卫生间

    通过简洁的色彩搭配,营造出一个清新洁净的环境

< >

55㎡老破小爆改奶油风

75㎡侘寂风

160㎡复式轻奢

80㎡法式复古的浪漫叙事

48㎡法式复古风

沪ICP备13002314号-1 沪B2-20170342 组织机构代码证:66439109—1

中国互联网协会信用评价中心网信认证 网信编码:1664391091 举报电话:400-660-7700

齐家网 版权所有Copyright © 2005- www.jia.com All rights reserved

回到顶部

扫一扫,关注我们

齐家官方微信

温馨提示

取消 同意并继续