问题不能为空!快去添加问题吧!

齐家网 > 装修设计 > 上海装修 > 上海装修案例 > 世茂滨江现代简约

世茂滨江现代简约

128㎡ 普通住宅 简约 世茂滨江壹号
造价:
22万

设计的元素并不复杂,主要以木.瓷砖.涂料.皮沙发为主。布局和生活、居者的习惯契合以生活为主。自然轻快的动线中,表达对于生活的喜悦之情装饰美学回归生活本身,感受到精致和细腻,情感和真诚在空间流转,那是真实的家。

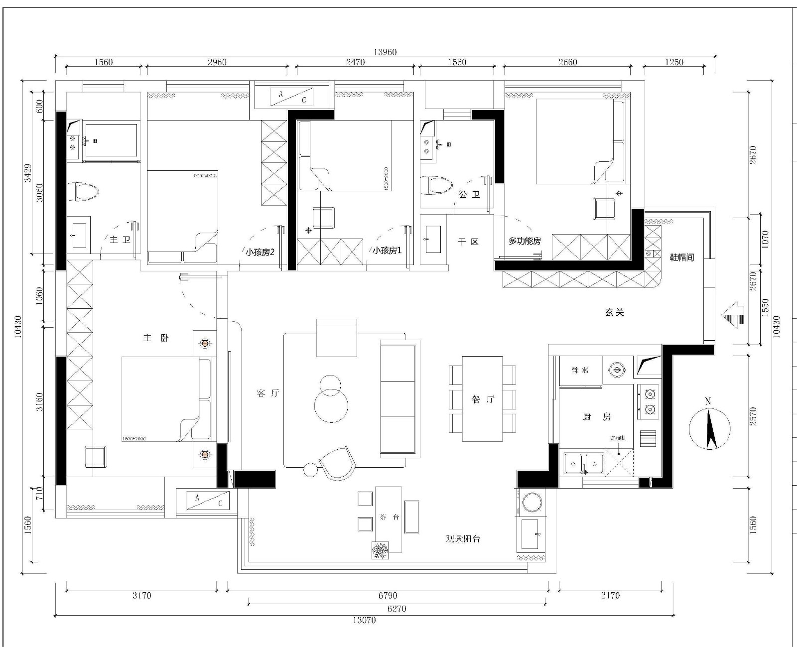
  • 全屋户型图

    设计的元素并不复杂,主要以木.瓷砖.涂料.皮沙发为主。布局和生活、居者的习惯契合以生活为主。自然轻快的动线中,表达对于生活的喜悦之情装饰美学回归生活本身,感受到精致和细腻,情感和真诚在空间流转,那是真实的家。

  • 客厅

    为了增大整个厅的空间,阳台做了大幅落地窗。

    ,把整个阳台纳入客厅。一半晾晒一半休闲养猫,生活好不惬意。

    为了缓解门洞直角,做了两个弧角,奶油风韵味更浓厚了。

    客厅吊顶设计了无主灯造型,营造更舒适的居家氛围。

    电视背景墙采用悬浮设计,暗藏灯带简约时尚。

  • 卧室

    儿童房也是很童话,大大的书桌和衣柜连体。

    满足实用又体现空间感。

    主卧床尾一整排柜子加上梳妆台,收纳美容两不误。

  • 厨房

    U字型橱柜动线布局,洗切炒功能动线流畅。

  • 卫生间

    主卫做了干湿分离的设计,干净清爽

    公卫做了外置洗手盆的设计,方便人多的时候使用。

  • 阳台

    阳台做了封窗处理,一边设计了一体的洗衣机柜。

    阳台另一边做了养猫猫的柜子,别有一番爱心。

  • 餐厅

    餐厅与客厅共用空间,只能放下方型餐桌使用。

    岩板材质的餐桌给新房增添了一丝精致。

  • 玄关

    玄关的收纳柜储物功能充分满足业主家的日常所需。

    玄关设计了7字型的转角柜,结合鞋柜和储物柜。

< >

恒裕城200m²现代意式

华侨城法式中古

260m²碧湖广场新中式

顺宝天誉现代风格

世茂滨江现代简约

沪ICP备13002314号-1 沪B2-20170342 组织机构代码证:66439109—1

中国互联网协会信用评价中心网信认证 网信编码:1664391091 举报电话:400-660-7700

齐家网 版权所有Copyright © 2005- www.jia.com All rights reserved

回到顶部

扫一扫,关注我们

齐家官方微信

温馨提示

取消 同意并继续