问题不能为空!快去添加问题吧!

齐家网 > 装修设计 > 上海装修 > 上海装修案例 > 意绘中古 酿绿藏光

意绘中古 酿绿藏光

65㎡ 普通住宅 美式 假山路73号
造价:
22万

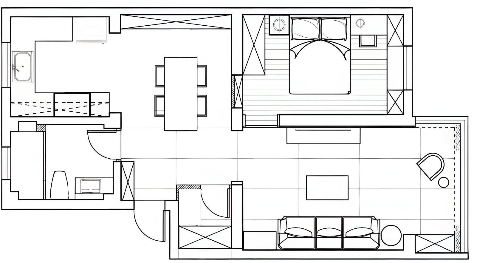
业主对美式中古情有独钟,追求生活情调,原户型两室,厨房空间不足,客餐厅太过狭小不通透,将两房改造成一房后,扩大厨房面积,同时打造大客厅和大餐厅,是本案的设计亮点,改造后全屋通透感明显提升。 玄关、餐厅多组柜子满足收纳,硬装上多以木质为主,软装则偏向复古效果,全屋柜子定制,统一无门槛石,拱门单边圆弧,卧室隐形门,墙面木饰面与PU线条的工艺都在无形中提升了质感。

  • 全屋户型图

    业主对美式中古情有独钟,追求生活情调,原户型两室,厨房空间不足,客餐厅太过狭小不通透,将两房改造成一房后,扩大厨房面积,同时打造大客厅和大餐厅,是本案的设计亮点,改造后全屋通透感明显提升。 玄关、餐厅多组柜子满足收纳,硬装上多以木质为主,软装则偏向复古效果,全屋柜子定制,统一无门槛石,拱门单边圆弧,卧室隐形门,墙面木饰面与PU线条的工艺都在无形中提升了质感。

  • 客厅

    镜头对准客厅,恍若品尝一个香香软软的小蛋糕,糯叽叽肥嘟嘟的,糖分摄入99.99%~绿色乳胶漆与PU线条在室内轻轻挥洒,这一抹绿仿佛林间深处的一汪清泉。 时光轻声细语,实木沙发静静伫立软萌可爱,似梦境中的轻柔幻影,安放每一个温柔的瞬间。毛绒地毯随意铺展,却在不经意间,轻点每一道光影的舞动。

    胡桃木电视柜默然无声,未经雕琢的质朴却将岁月的沉香娓娓道来。复古家具占据客厅边边角角,胡桃木玻璃柜却将古老的故事娓娓道来。 背景墙与隐形门织就虚无梦境,视线在无垠的空灵中徜徉,探寻纯白无瑕处的迷离。实木可升降边几似流星般掠影而过,虚无却充满诗意。

  • 卧室

    暖焦糖色真的超美,墙面刷上温暖的奶白色,恰到好处的浪漫,带来不言自明的温柔。实木梳妆台自光中生长,一笔一划勾勒高贵典雅,讲述时间年轮。 胡桃实木床温润如初秋的晨露,淡淡的木香在空气中萦绕,仿佛岁月的精雕细琢,带来无尽安宁。实木窗台这片小小天地如同晨曦中的雾霭,在朦胧中绽放。

    镂空格上放置猫咪摆件,如同生活中的小确幸,这些是业主的摆件,更是业主的好朋友!你的小小特别,终将闪闪发亮~ 复古床头柜诉说往昔流年,时光的指尖轻柔抚过,原木的质朴化作岁月低语,顾盼之间,惊鸿一瞥。焦糖色木地板,这颜值不要太好看,氛围感全部拿捏!

  • 厨房

    墨绿橱柜甜而不腻,岁月的涟漪悄然拂过,隐约映照一段似曾相识的往事。光影下的纯白台面影影绰绰,奶呼呼的令人心动。 右侧冰箱静默伫立,秋风中的飘零绵延至无尽的远方。吊柜仿佛掉进蜜罐的棉花糖,糖分超标~窗下阳光婆娑轻舞,大自然的画笔渲染生动的光影意境。

  • 卫生间

    新家卫生间化身艺术角落,小花砖清新脱俗,复古绿仿佛苍翠的山峦在眼前舒展,幽静绿意,好似从自然中采撷而来,氤氲其间。 白色陶瓷洗手池,仿佛一块未经雕琢的璞玉,又似晨曦初露的微光,星辰洒落凡间,色彩由风裁剪,任意铺陈,却自成章法,轻柔又深邃,不禁沉醉。

  • 餐厅

    温柔的奶白洒满餐厅,地面选择治愈系奶茶色,自带柔美滤镜~中古风高柜流光溢彩、错落有致,奶白柜门、原木柜体织就幽幽剪影,另添一分复古。 实木餐桌藤编餐椅的奇幻邂逅,镶嵌在奶油蛋糕屋中,浮生若梦,煦色韶光。小天使绿植仿佛一抹淡淡的晨光,唯美与柔和浓郁渲染开来。

    格中错落有致的装饰品其间婀娜流转,陶瓷许愿猫与猴子摆件似一场无声话剧,虚无却充满诗意。定格此刻,装饰画美得那么不真切,温柔安放于此。 由餐厅望向客厅,只一口呷吞,便可梦千里暮云。眺望餐厅,月球灯与香薰烛台书写电影般的迷离,每一帧闪耀过往光影。

< >

观澜时代江景房

江南水乡现代风别墅装修

玲珑珺-中古风

星颂府-中古风

简韵盈室 静谧淡雅

商家信息
杭州恒彩装饰

口碑值:

已有人预约

立即询价

设计师信息

郭炯首席设计师

工作年限:16年

设计理念:细节决定效果,态度成就品质 作品:万家星城.泊林印象.金基晓庐.东方润园.上塘宸章.蓝孔雀.海德公园.东方海岸.九溪·玫瑰园.大华西溪等

请他帮我设计

沪ICP备13002314号-1 沪B2-20170342 组织机构代码证:66439109—1

中国互联网协会信用评价中心网信认证 网信编码:1664391091 举报电话:400-660-7700

齐家网 版权所有Copyright © 2005- www.jia.com All rights reserved

回到顶部

扫一扫,关注我们

齐家官方微信

温馨提示

取消 同意并继续