扫码下载 齐家APP
海量装修干货解救装修小白
扫码下载APP
扫码查看小程序
扫码关注公众号
问题不能为空!快去添加问题吧!
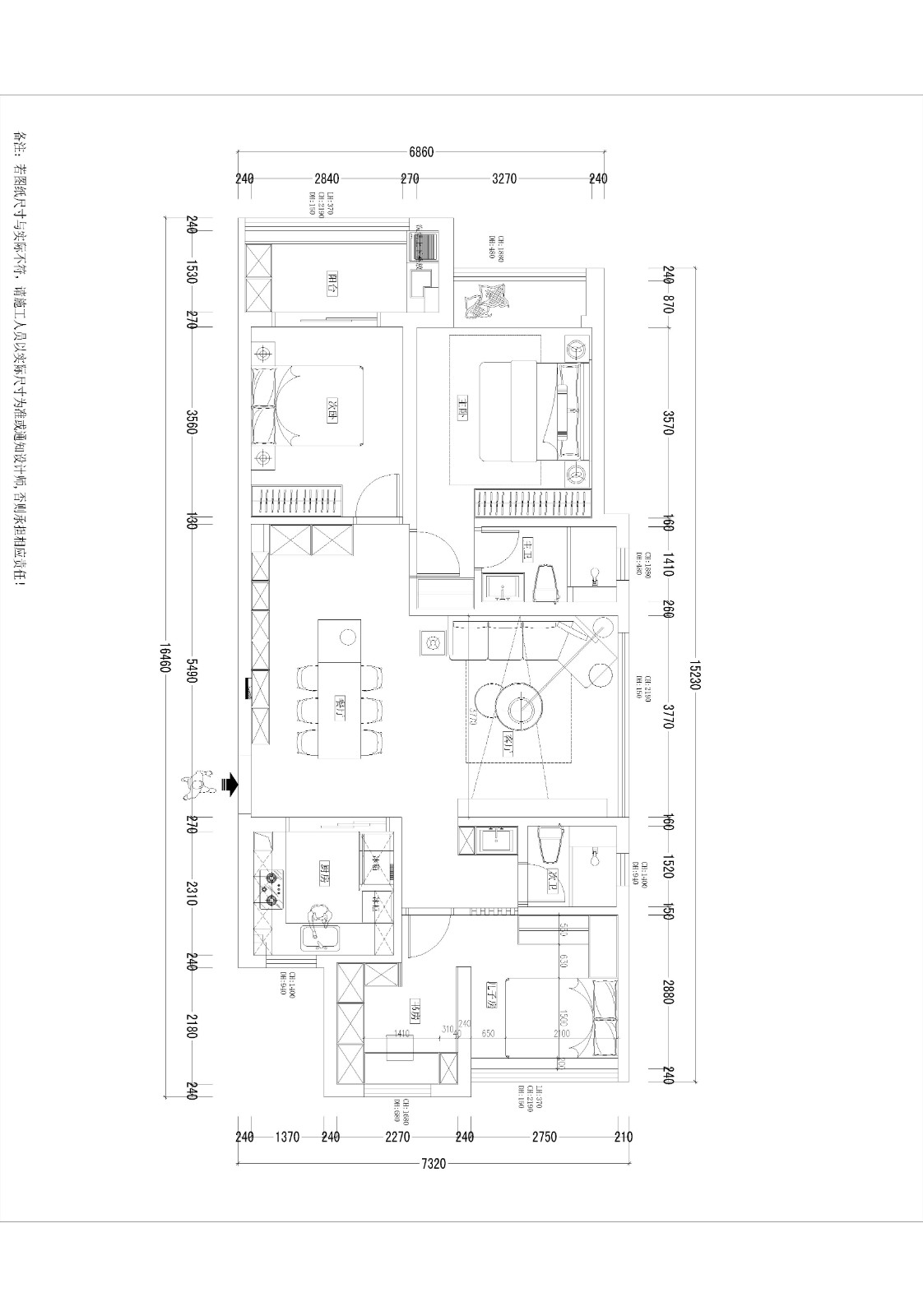
原精装修,四房改三房户型,承重墙不能拆,儿童房和书房结合。
客厅背景没做特别多造型,电视机隐藏
入户鞋柜做了储物格,增加装饰性,客餐厅铺贴做了分区,
儿童房现场照片,最终选的木纹比效果图更深
做了无主灯,晚上氛围感绝绝子
儿童房书房效果图,书桌结合衣柜
儿童房书房现场落地。
厨房做了洗碗机,蒸烤箱,颜色根据客户喜好选了白色磨砂
500平办公会所
尚江府
绿地观堂150平
重拾时光里的优雅与温暖
锦尚府
热门搜索
口碑值:
已有人预约
口碑值计算方式:
开工(+4分)
预约(+1分)
投诉(-30分)
口碑分值有效期为90天
立即询价
蒋娥首席设计师
工作年限:5年
设计源于生活,生活因设计而改变!成就空间和谐,让设计物有所值,让细节缔造完美!把外表艺术性与内里的技术性二合为一,达到美观和实用共存。
请他帮我设计
沪ICP备13002314号-1 沪B2-20170342 组织机构代码证:66439109—1
中国互联网协会信用评价中心网信认证 网信编码:1664391091 举报电话:400-660-7700
齐家网 版权所有Copyright © 2005- www.jia.com All rights reserved
今日已有0用户预约装修
24小时内会有客服人员与您联系,确认您的具体需求
由于申请人数较多,完善资料可更快获取审核服务
扫一扫,关注齐家官方微信号
“您还可以在微信上找到更多装修服务”
扫一扫,关注我们
齐家官方微信
请阅读并同意《齐家用户协议》和《隐私政策》
取消 同意并继续