问题不能为空!快去添加问题吧!

齐家网 > 装修设计 > 上海装修 > 上海装修案例 > 现代简约设计风格

现代简约设计风格

130㎡ 普通住宅 简约 万科
造价:
125万

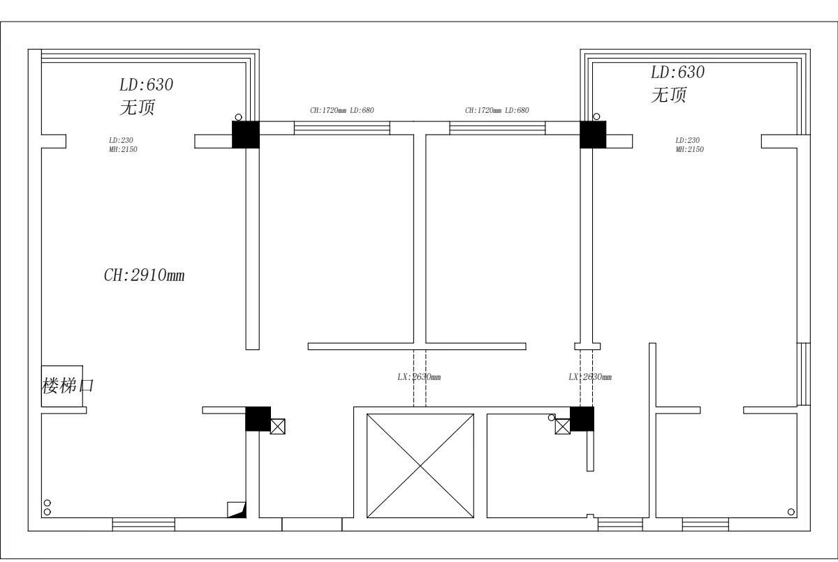
线条勾勒空间骨架,标注藏着布局密码,这张户型图,是待以创意填充的生活容器,每寸空白都在等理想家的故事生长 。

  • 全屋户型图

    线条勾勒空间骨架,标注藏着布局密码,这张户型图,是待以创意填充的生活容器,每寸空白都在等理想家的故事生长 。

  • 客厅

    浅白墙面作画布,几何挂画添艺术笔触,暖棕抱枕似灵动色块,阳光漫入时,整个空间晕染成治愈的生活美学 。

    浅白空间作底,暖棕抱枕点睛,通透明亮的格局里,阳光与绿意共赴,把生活晕染成治愈系日常 。

    简洁柜体围合出一方玄关天地,红与白的艺术摆件作点睛之笔,在光影流淌间,以极简之姿,开启家的雅致序章 。

    线条勾勒空间骨架,标注藏着布局密码,这张户型图,是待以创意填充的生活容器,每寸空白都在等理想家的故事生长 。

  • 卧室

    浅调空间里,柔和光线漫洒,一张床承载静谧,绿植与挂画点缀,把休憩时光晕染成治愈的诗,每一寸都藏着对松弛生活的注解 。

  • 厨房

    简洁柜体围合出一方玄关天地,红与白的艺术摆件作点睛之笔,在光影流淌间,以极简之姿,开启家的雅致序章 。

  • 玄关

    简洁柜体围合出一方玄关天地,红与白的艺术摆件作点睛之笔,在光影流淌间,以极简之姿,开启家的雅致序章 。

< >

法式复古风

新中式

现代原木风

现代简约设计风格

现代简约设计风格

沪ICP备13002314号-1 沪B2-20170342 组织机构代码证:66439109—1

中国互联网协会信用评价中心网信认证 网信编码:1664391091 举报电话:400-660-7700

齐家网 版权所有Copyright © 2005- www.jia.com All rights reserved

回到顶部

扫一扫,关注我们

齐家官方微信

温馨提示

取消 同意并继续