问题不能为空!快去添加问题吧!

齐家网 > 装修设计 > 深圳装修 > 深圳装修案例 > 「静默的秩序」空间叙事

「静默的秩序」空间叙事

103㎡ 大户型 简约 市勘察研究院-4号楼
造价:
15万

整体设计以“质感共生”为内核,在自然元素与轻奢材质、活力表达与静谧氛围间寻找平衡,让每个空间都成为“容纳个性与松弛”的生活剧场。

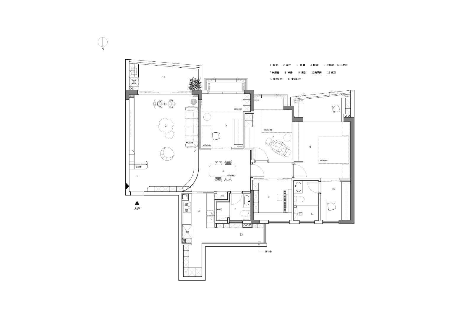
  • 全屋户型图

    整体设计以“质感共生”为内核,在自然元素与轻奢材质、活力表达与静谧氛围间寻找平衡,让每个空间都成为“容纳个性与松弛”的生活剧场。

  • 客厅

    米白皮革沙发如云朵般柔软,灰褐色针织毯与纹理抱枕叠出层次,为空间注入“可触摸的温度”。黑白色调的艺术茶几上,大理石肌理与花艺摆件相映成趣,恰似自然与工艺的对话;一旁的蕨类绿植舒展枝叶,将窗外天光过滤成地毯上的斑驳光影——在透纱窗帘的柔化下,整个空间成为“把自然拥入怀”的松弛容器。

  • 卧室

    米白床头的弧形线条柔化空间棱角,棕调提花抱枕与丝绒床品叠出奢华质感,却又以“可躺卧的柔软”保留舒适底色。背景墙的竖纹肌理与木质面板碰撞出层次, bedside lamp 的极简造型与艺术吊灯的个性设计形成对话;在窗帘滤过的柔光里,整个卧室成为“卸下疲惫、拥抱奢雅”的疗愈场域。

  • 厨房

    大理石餐桌的天然纹路,与琥珀色餐椅的绒面质感形成奢雅对比;上方玻璃吊灯如艺术装置,将光线拆解成流动的璀璨碎片。极简花艺与雕塑摆件点缀桌面,让用餐场景兼具“美术馆的精致”与“家的烟火气”;而墙面挂画的线条韵律,又与窗帘、地面的材质肌理遥相呼应,在理性布局中生长出感性的美学张力。

  • 儿童房

    橄榄绿床头如自然的切片,撞色抱枕与编织纹理在黑白基底上跳脱出活力节奏,冲浪板装饰更是将“自由气息”刻入空间基因。牛油果绿柜体为视觉注入清新,毛绒凳与艺术摆件则软化了理性线条;台灯晕出的暖光里,工作区与睡眠区自然过渡,让年轻态的生活态度,在静谧氛围中蓬勃生长。

< >

时光沉淀的中国美学

被奶油包裹的家

12万打造松弛感和实用性

克制与张力的平衡

极简风终于不“冷”了

沪ICP备13002314号-1 沪B2-20170342 组织机构代码证:66439109—1

中国互联网协会信用评价中心网信认证 网信编码:1664391091 举报电话:400-660-7700

齐家网 版权所有Copyright © 2005- www.jia.com All rights reserved

回到顶部

扫一扫,关注我们

齐家官方微信

温馨提示

取消 同意并继续