问题不能为空!快去添加问题吧!

齐家网 > 装修设计 > 宿州装修 > 宿州装修案例 > 现代简约

现代简约

128㎡ 三房 现代 梅龙雅苑
造价:
16.86万

户型:三室两厅 面积:128平 风格:现代简约

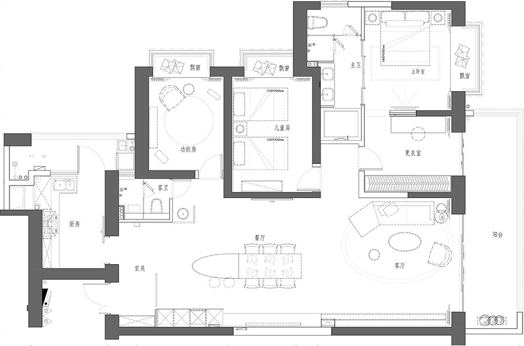
  • 全屋户型图

    户型:三室两厅 面积:128平 风格:现代简约

  • 客厅

    空间整体用极简的设计手法,开放的布局,造型干净利落的顶面与墙面,体现出现代简约生活的品质感。

  • 卧室

    主卧硬装造型致展现出强烈的现代感,床背景挂画用亚克力与纯净的、肌理特殊的白,进行材质上的对比。将颜色主要集中在床尾凳、窗帘、电视背景挂画上,用素雅***的灰色,突显质感。

  • 厨房

    将湘江的波澜映入室内,呈现于进入卧室区域分割空间,给人以强烈的时尚感。用现代的手法、镜面不锈钢的材质。

  • 卫生间

    雅士白的墙面瓷砖,配合玫瑰金色镜框,加上洁白的瓷器。突显简洁大气

< >

现代简约风三居室

原木风案例落地

奶油中古风落地案例

现代简约风落地案例

188平奶油风

沪ICP备13002314号-1 沪B2-20170342 组织机构代码证:66439109—1

中国互联网协会信用评价中心网信认证 网信编码:1664391091 举报电话:400-660-7700

齐家网 版权所有Copyright © 2005- www.jia.com All rights reserved

回到顶部

扫一扫,关注我们

齐家官方微信

温馨提示

取消 同意并继续