问题不能为空!快去添加问题吧!

齐家网 > 装修设计 > 保定装修 > 保定装修案例 > 北欧风格

北欧风格

89㎡ 三房 北欧 中海城
造价:
13万

3居室户型,家里两个宝宝,男孩儿6岁,女孩儿4岁,夫妻二人带孩子很辛苦,女主家庭主妇,男主外企工作,整体储物空间要多,简单实用,需要中央空调,注重环保,客厅主要已孩子学习为主,建立良好学习环境,主卧增加电视功能

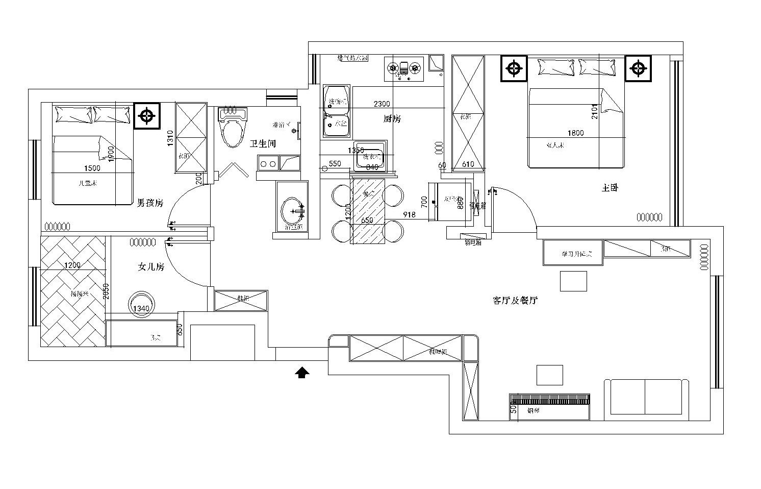
  • 全屋户型图

    3居室户型,家里两个宝宝,男孩儿6岁,女孩儿4岁,夫妻二人带孩子很辛苦,女主家庭主妇,男主外企工作,整体储物空间要多,简单实用,需要中央空调,注重环保,客厅主要已孩子学习为主,建立良好学习环境,主卧增加电视功能

  • 客厅

    大宝在学习钢琴,考虑放置一个小沙发即可

    书柜学习桌,易清洁的中性灰色大地砖

    沙发背景墙后期做宝宝们的照片墙设计

    餐桌也是最小尺寸设计的,700的对开门冰箱

  • 卧室

    女儿房做定制床设计,搭配公主范壁布

    全景鸟瞰图,每个空间都一览无余

  • 厨房

    u字形橱柜设计,需要增加净水器前置过滤器,软水机

  • 卫生间

    干湿分离卫生间,后期增加三联动玻璃淋浴房

< >

75平现代两局

现代一居

现代

现代简约

欧式

沪ICP备13002314号-1 沪B2-20170342 组织机构代码证:66439109—1

中国互联网协会信用评价中心网信认证 网信编码:1664391091 举报电话:400-660-7700

齐家网 版权所有Copyright © 2005- www.jia.com All rights reserved

回到顶部

扫一扫,关注我们

齐家官方微信

温馨提示

取消 同意并继续