问题不能为空!快去添加问题吧!

齐家网 > 装修设计 > 保定装修 > 保定装修案例 > 简约空间里的一抹禅意

简约空间里的一抹禅意

160㎡ 大平层 现代 中南世纪城
造价:
14万

整个空间材料以大地色系为主,***灰的面料、纯色皮革、大理石的巧妙使用,与温暖的橡木色、金色相辅相成,集质感、设计感和舒适于一体。营造出高品质的轻奢居住体验。

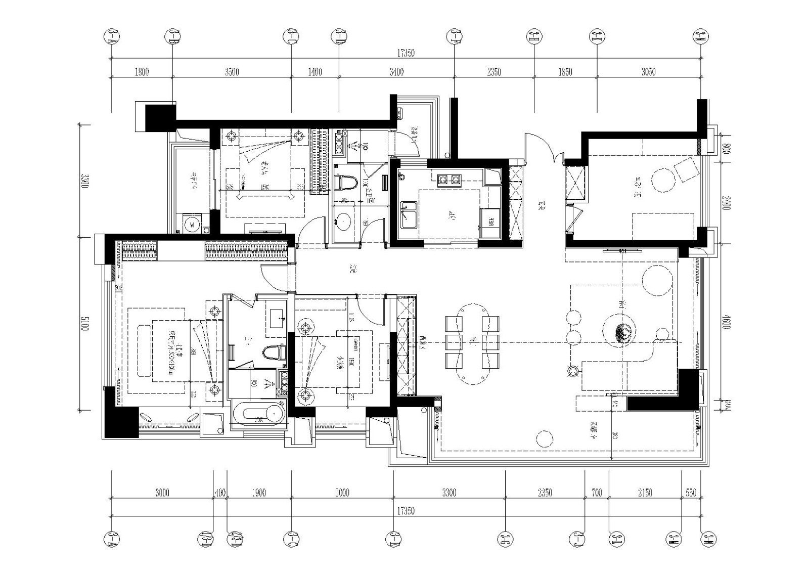
  • 全屋户型图

    整个空间材料以大地色系为主,***灰的面料、纯色皮革、大理石的巧妙使用,与温暖的橡木色、金色相辅相成,集质感、设计感和舒适于一体。营造出高品质的轻奢居住体验。

  • 客厅

    客厅区域采用大围合形式,让彼此的距离相近却不局促。阳台和客厅之间用吧台相连,给阳光也留个旁听位置。

    袅绕的饭菜香,甘冽的美酒香,醇厚的咖啡香……各式香气流溢,组成了人间值得的味道。 翰墨悠长,小酌美酒,在阳台一角便可拾得一刻闲暇。

    每一个细节的设计和打磨,都是对自己生活习惯和想要实现的生活方式的思考。 爱人在侧,知己两三,在优雅与时髦兼具的流畅空间里谈天说地,会是怎一番酣畅淋漓。

  • 卧室

    如果非要用什么来装点内心的“猛虎”,那一定是流光溢彩的金,珍贵的珊瑚,以及雍容华贵的皮草。 动物斑纹的墙面和磨毛床品恰到好处的柔软,各式设计单品的纯净典雅,使卧室在温度和格调中拿捏有度。

    每颗忙碌而远大的雄心,都一定乐于被温柔和美丽征服。

< >

中古风

现代简约

现代简约

奶油风格

意式极简

沪ICP备13002314号-1 沪B2-20170342 组织机构代码证:66439109—1

中国互联网协会信用评价中心网信认证 网信编码:1664391091 举报电话:400-660-7700

齐家网 版权所有Copyright © 2005- www.jia.com All rights reserved

回到顶部

扫一扫,关注我们

齐家官方微信

温馨提示

取消 同意并继续