问题不能为空!快去添加问题吧!

齐家网 > 装修设计 > 保定装修 > 保定装修案例 > 日式

日式

102㎡ 三房 现代 玉兰湾
造价:
16万

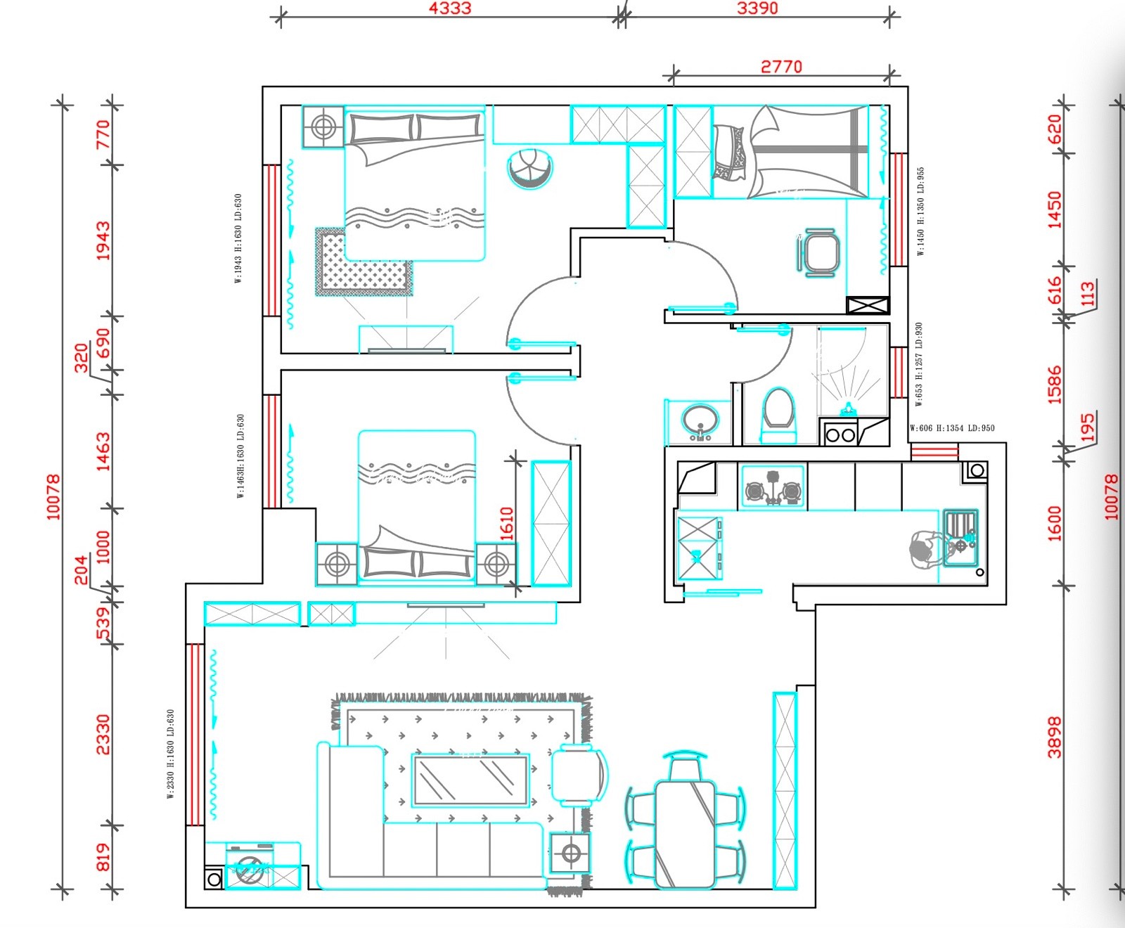
房子是三室两厅一厨一卫的房子,房子户型规整没有浪费的空间

  • 全屋户型图

    房子是三室两厅一厨一卫的房子,房子户型规整没有浪费的空间

  • 客厅

    客厅设计电视墙以简单的造型柜和隔栅去做点缀,即满足了收纳空间的使用也满足了电视墙装饰

    阳台设计洗衣机柜,将洗衣机柜子嵌入到柜体内,即美观又增加收纳空间

  • 卧室

    卧室设计简单的衣柜,主要以居住为主

  • 厨房

    橱柜设计L形柜子,满足洗切炒操作习惯

  • 卫生间

    卫生间宽敞明亮,简约大气

< >

75平现代两局

现代一居

现代

现代简约

欧式

沪ICP备13002314号-1 沪B2-20170342 组织机构代码证:66439109—1

中国互联网协会信用评价中心网信认证 网信编码:1664391091 举报电话:400-660-7700

齐家网 版权所有Copyright © 2005- www.jia.com All rights reserved

回到顶部

扫一扫,关注我们

齐家官方微信

温馨提示

取消 同意并继续