问题不能为空!快去添加问题吧!

齐家网 > 装修设计 > 保定装修 > 保定装修案例 > 经典黑白灰装修

经典黑白灰装修

120㎡ 三房 现代 锦绣家园
造价:
16.3万

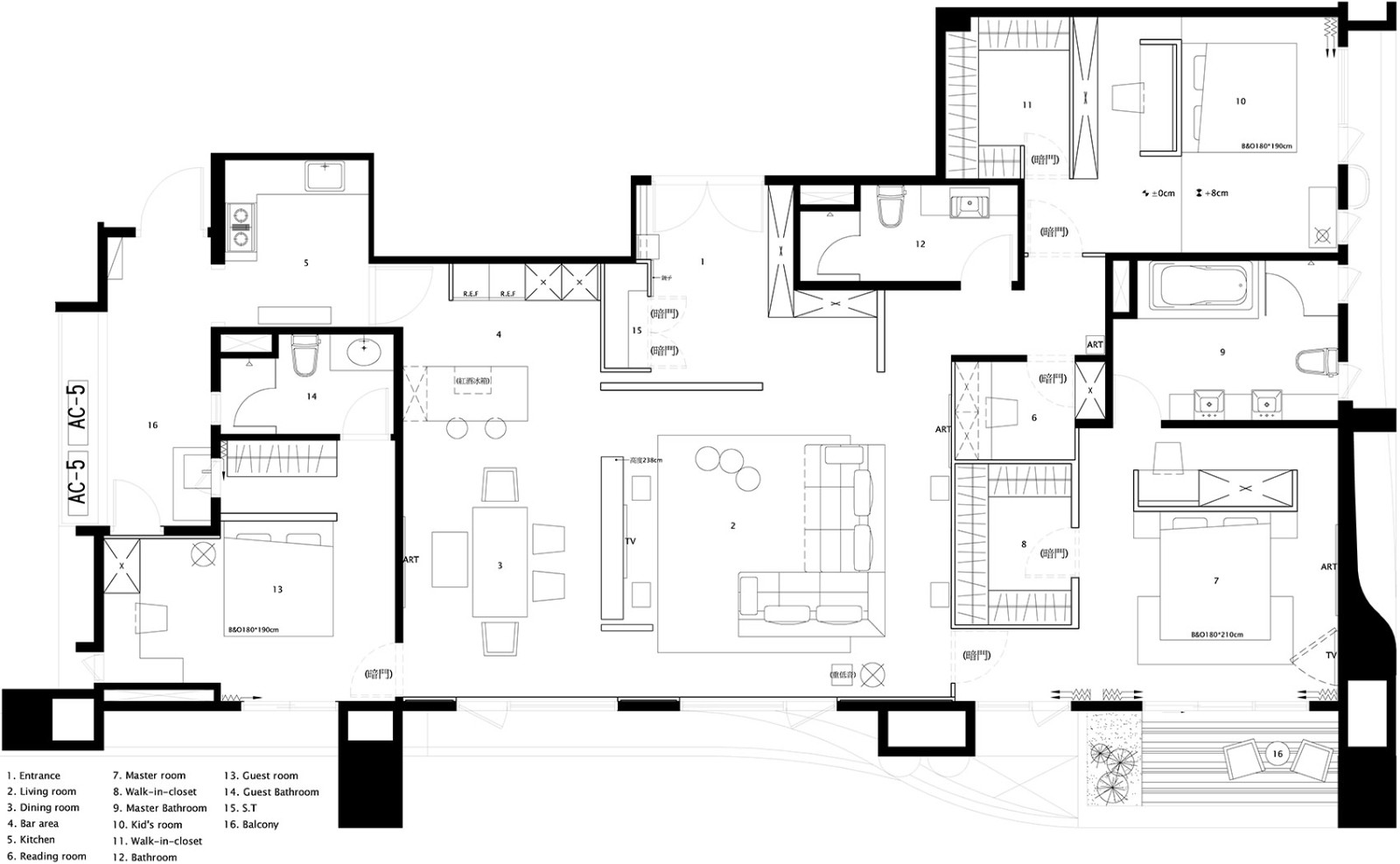
户型为三室二厅一厨三卫,经典黑白灰装修风设计

  • 全屋户型图

    户型为三室二厅一厨三卫,经典黑白灰装修风设计

  • 客厅

    客厅墙面整体采用微水泥,搭配一套白色沙发,

    入户玄关设计了一个悬空的玄关,空间,利用一个射灯提亮墙面造型

    沙发选择定制悬空沙发,背景墙采用黑色竖木纹

    餐厅去放置在沙发对面,利用电视背景墙,做高柜,化合空间

  • 卧室

    卧室采用地台试设计,

< >

75平现代两局

现代一居

现代

现代简约

欧式

沪ICP备13002314号-1 沪B2-20170342 组织机构代码证:66439109—1

中国互联网协会信用评价中心网信认证 网信编码:1664391091 举报电话:400-660-7700

齐家网 版权所有Copyright © 2005- www.jia.com All rights reserved

回到顶部

扫一扫,关注我们

齐家官方微信

温馨提示

取消 同意并继续