问题不能为空!快去添加问题吧!

齐家网 > 装修设计 > 保定装修 > 保定装修案例 > 52平面改造

52平面改造

52㎡ 两房 现代 光大水墨
造价:
12万

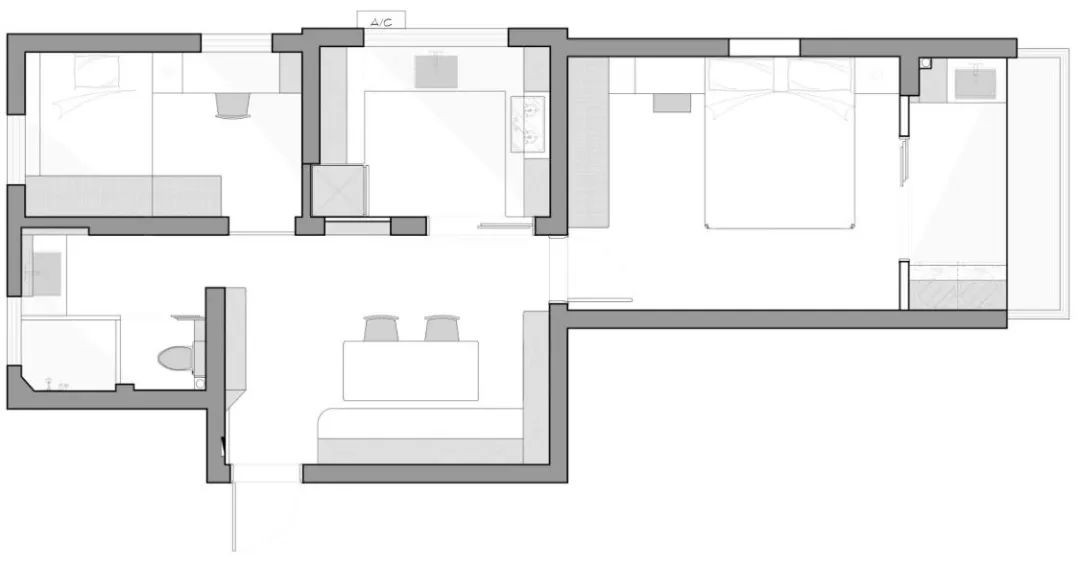
由于是80年代的老房子,整栋楼没有排烟管,也没有天然气管道,这是我们本次方案调整的前提条件。

  • 全屋户型图

    由于是80年代的老房子,整栋楼没有排烟管,也没有天然气管道,这是我们本次方案调整的前提条件。

  • 客厅

    客户一家很少看电视,只需要安排投影就可以,我们将两个空间合二为一,用卡座代替沙发,虽然舒适性会受到一定的影响,但美观上足够弥补

    客户一家很少看电视,只需要安排投影就可以,我们将两个空间合二为一,用卡座代替沙发,虽然舒适性会受到一定的影响,但美观上足够弥补

  • 卧室

    在这个总面积仅57㎡的空间里,主卧就高达15㎡,整体色调是起居室的延续,蜜桔粉满足Z小姐的少女心。睡惯了大床也不怕,这里可以妥妥放下2000*2300以内的床。

    次卧这个空间为宝宝房间

  • 卫生间

    干湿分离的设计,马桶间设计三联动推拉门,可以放大进出尺寸,淋浴房用浴帘进行分离

< >

现代

现代简约

欧式

现代原木风

诧寂风

沪ICP备13002314号-1 沪B2-20170342 组织机构代码证:66439109—1

中国互联网协会信用评价中心网信认证 网信编码:1664391091 举报电话:400-660-7700

齐家网 版权所有Copyright © 2005- www.jia.com All rights reserved

回到顶部

扫一扫,关注我们

齐家官方微信

温馨提示

取消 同意并继续