扫码下载 齐家APP
海量装修干货解救装修小白
扫码下载APP
扫码查看小程序
扫码关注公众号
问题不能为空!快去添加问题吧!
此案例整体以浅色调的现代奶油风为主,墙面暖咖色搭配地面暖色柔光砖,使空间整体色调干净整洁
客厅吊顶造型多以弧形做装饰,改变常规吊顶生硬感,使整体空间都更加柔和流畅用。
主卧而简约主义所崇尚的正是通过流动的线条、质感的材料及整体协调搭配让人在日趋繁忙的生活中,得到一种能彻底放松
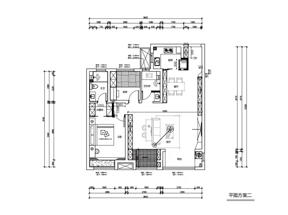
将南向次卧室与客厅墙体打通,使其成为客厅书房结合-- 体的开敞空间,增大空间的开阔性和通透性,同时满足空间功能得到充分使用。
厨房餐厅空间较小,将入户墙体改为s型墙体,缩小入户鞋柜间,为冰箱提供空间。
卫生间空间布局紧凑,分寸必用,利用率高。
75平现代两局
现代一居
现代
现代简约
欧式
热门搜索
口碑值:
已有人预约
口碑值计算方式:
开工(+4分)
预约(+1分)
投诉(-30分)
口碑分值有效期为90天
立即询价
杨女士
工作年限:3年
请他帮我设计
沪ICP备13002314号-1 沪B2-20170342 组织机构代码证:66439109—1
中国互联网协会信用评价中心网信认证 网信编码:1664391091 举报电话:400-660-7700
齐家网 版权所有Copyright © 2005- www.jia.com All rights reserved
今日已有0用户预约装修
24小时内会有客服人员与您联系,确认您的具体需求
由于申请人数较多,完善资料可更快获取审核服务
扫一扫,关注齐家官方微信号
“您还可以在微信上找到更多装修服务”
扫一扫,关注我们
齐家官方微信
请阅读并同意《齐家用户协议》和《隐私政策》
取消 同意并继续