问题不能为空!快去添加问题吧!

齐家网 > 装修设计 > 保定装修 > 保定装修案例 > 50平日式原木

50平日式原木

50㎡ 小户型/一房 原木 北京市
造价:
7.38万

在50平的空间里,要有超强收纳、独立工作区、两个观影区(客厅、卧室)、独立的淋浴和浴缸、干湿分离的卫生间、和朋友聚餐的空间......

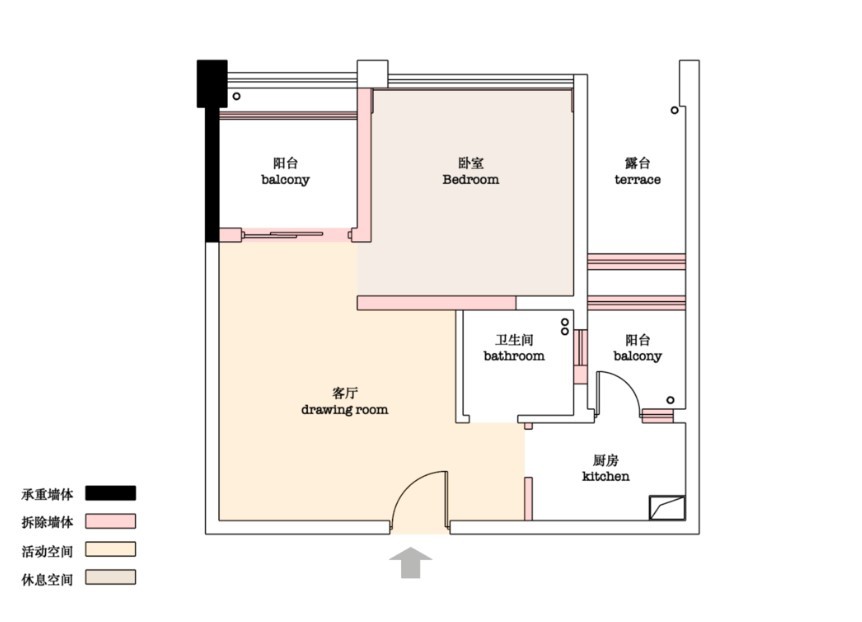
  • 全屋户型图

    在50平的空间里,要有超强收纳、独立工作区、两个观影区(客厅、卧室)、独立的淋浴和浴缸、干湿分离的卫生间、和朋友聚餐的空间......

  • 客厅

    客厅与卧室相同,增加空间,增加动线

  • 卧室

    卧室榻榻米设计,搭配投影

  • 厨房

    厨房原木色设计,符合整体调性

  • 卫生间

    卫生间整体黑白原木色搭配

< >

现代

现代简约

欧式

现代原木风

诧寂风

沪ICP备13002314号-1 沪B2-20170342 组织机构代码证:66439109—1

中国互联网协会信用评价中心网信认证 网信编码:1664391091 举报电话:400-660-7700

齐家网 版权所有Copyright © 2005- www.jia.com All rights reserved

回到顶部

扫一扫,关注我们

齐家官方微信

温馨提示

取消 同意并继续