问题不能为空!快去添加问题吧!

齐家网 > 装修设计 > 保定装修 > 保定装修案例 > 春语云树116平混搭风

春语云树116平混搭风

116㎡ 三房 混搭 春语云树
造价:
9.2万

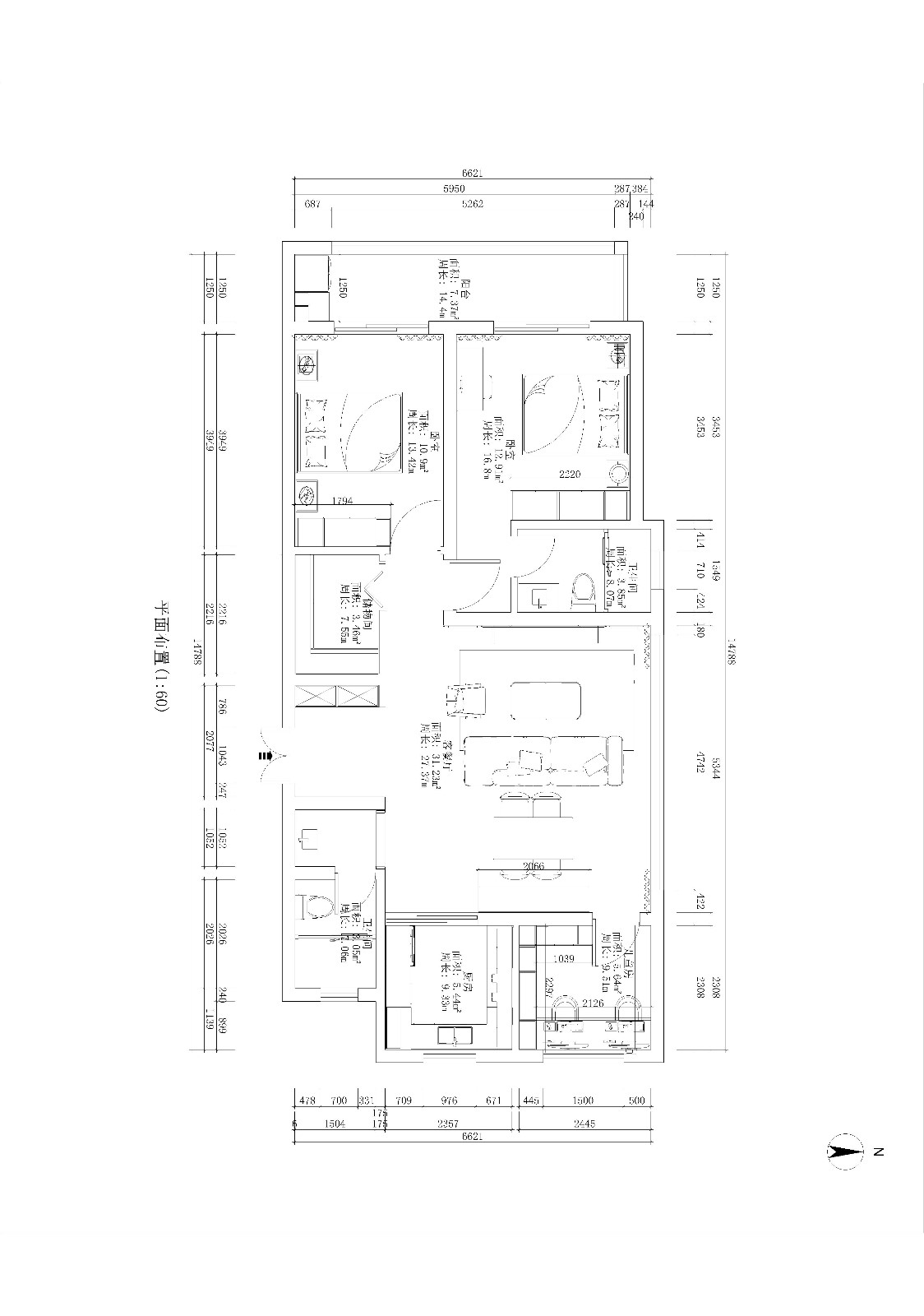
春语云树 经典案例展示~

  • 全屋户型图

    春语云树 经典案例展示~

  • 客厅

    春语云树 经典案例展示~

    春语云树 经典案例展示~

  • 卧室

    春语云树 经典案例展示~

    春语云树 经典案例展示~

  • 书房

    春语云树 经典案例展示~

< >

ins'奶油风通透住宅

极简白+木色,温柔日常感

意式轻奢

普通人的家|中古风

不费力的复古感

商家信息
YOBOO全案设计

口碑值:

已有人预约

立即询价

设计师信息

陈兴敏主任设计师

工作年限:15年

作为一名全案设计师,我具备丰富的设计经验和出色的创意能力。注重美学、功能和用户体验的平衡。我的设计格言是:人为生活而设计,设计为生活而存在。

请他帮我设计

沪ICP备13002314号-1 沪B2-20170342 组织机构代码证:66439109—1

中国互联网协会信用评价中心网信认证 网信编码:1664391091 举报电话:400-660-7700

齐家网 版权所有Copyright © 2005- www.jia.com All rights reserved

回到顶部

扫一扫,关注我们

齐家官方微信

温馨提示

取消 同意并继续