扫码下载 齐家APP
海量装修干货解救装修小白
扫码下载APP
扫码查看小程序
扫码关注公众号
问题不能为空!快去添加问题吧!
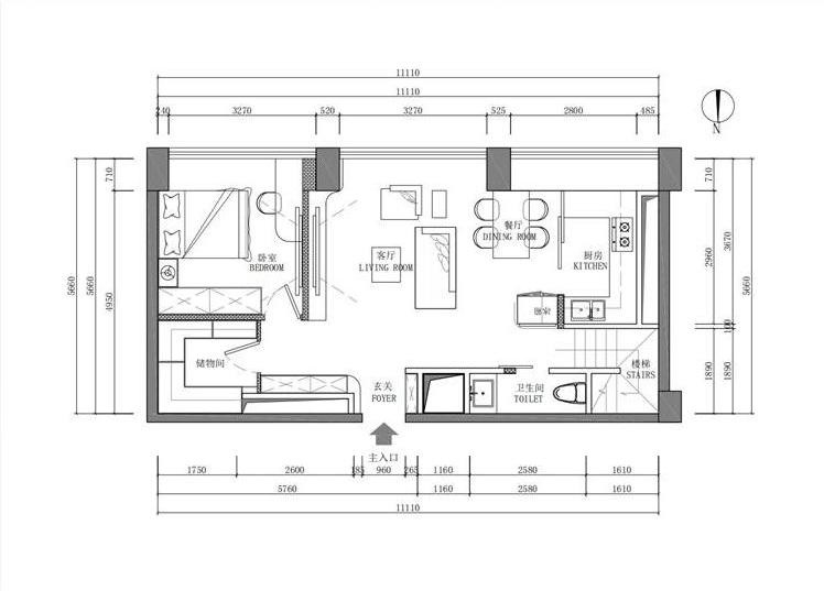
商住大开间,视野开阔,户型方正。
客厅的承重柱做了圆弧处理,沙发背对餐桌,增加联动性。
卧室要求去繁留简,采光是***位的,所以床位墙面大面积留白,一是增加了空间延展性,二让卧室的采光更通透。
半开放式厨房,和客厅之间动线更流畅,也便于家人之间互动。
卫生间墙面做了拼色,干区上墙部分防水漆涂刷,更显层次感。
现代
现代简约
欧式
现代原木风
诧寂风
热门搜索
口碑值:
已有人预约
口碑值计算方式:
开工(+4分)
预约(+1分)
投诉(-30分)
口碑分值有效期为90天
立即询价
沪ICP备13002314号-1 沪B2-20170342 组织机构代码证:66439109—1
中国互联网协会信用评价中心网信认证 网信编码:1664391091 举报电话:400-660-7700
齐家网 版权所有Copyright © 2005- www.jia.com All rights reserved
今日已有0用户预约装修
24小时内会有客服人员与您联系,确认您的具体需求
由于申请人数较多,完善资料可更快获取审核服务
扫一扫,关注齐家官方微信号
“您还可以在微信上找到更多装修服务”
扫一扫,关注我们
齐家官方微信
请阅读并同意《齐家用户协议》和《隐私政策》
取消 同意并继续