问题不能为空!快去添加问题吧!

齐家网 > 装修设计 > 保定装修 > 保定装修案例 > 国际友谊花园

国际友谊花园

150㎡ 大平层 极简 国际友谊花园
造价:
50万

业主是一对在北京工作的年轻夫妻,家中还有一位可爱的猫咪成员,这套房子***为他们未来3-5年的居所。屋主夫妻平时的工作强度较高,所以他们希望家足够的舒适明亮,可以使忙碌了***的身心得到放松。

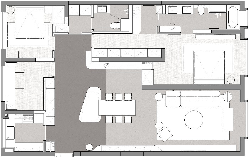
  • 全屋户型图

    业主是一对在北京工作的年轻夫妻,家中还有一位可爱的猫咪成员,这套房子***为他们未来3-5年的居所。屋主夫妻平时的工作强度较高,所以他们希望家足够的舒适明亮,可以使忙碌了***的身心得到放松。

  • 客厅

    蛋壳白为主调的客厅与透过香格里拉帘进入室内的柔和自然光,呈现出不用层次的白,简单温馨;

    客厅的电视墙连成一线,弧度的设计使其衔接自然;入户时的下天花与客餐厅区域的上天花,两相对比,空间拉高;吊顶边缘的线条勾勒出天花层次,应用圆弧形的精致收口,吊顶、定制石膏线与墙面自然过渡,增加了房屋精致度。

  • 卧室

    主卧通道右侧是满墙玻璃高柜,是卧室主要的收纳空间,清透的玻璃柜门设计,让拿找衣物变得一目了然;床头延长的悬空床头柜连接坐榻,形成宽裕的置物台面和休闲空间,空间的功能由单一走向丰富;主卧与餐厅的共墙拼接玻璃材质,将外部的光线引入室内;床尾同时设悬浮架与小型储物柜,满足日常收纳。

    客卧以浅灰与咖色为主题色,配以黑色床具,尽显沉稳大气;悬挑衣柜与同色床头背景墙无缝连接,弱化了柜体本身对床体的压迫感;衣柜下设储物抽屉,与床头柜一体设计。

  • 厨房

    坐在餐厅与在客厅的家人对望,丰富了人与人之间的情感交流,形成了温馨融洽的室内氛围;压缩书房面积,餐厅通道设计为一字靠墙电器柜

    内嵌双开门冰箱和两个隐藏门,拓展出西厨功能,适应屋主不同使用场景的需要

  • 卫生间

    卫生间干区设悬浮梳妆台,方便女业主日常护肤化妆;

    同时配置双台洗手台,屋主夫妻双方可同时洗漱,无需排队;台盆区上方的镜柜,中部的台面,下方的储物柜,为卫生间提供丰富收纳体验。

  • 书房

    书房临窗,悬浮书桌尺寸宽裕,可以满足屋主夫妻二人同时使用;

    书桌两侧配置书柜,可放置书籍或收纳小物;香格里拉帘使得室内的光线柔和,适宜沉浸办公。

< >

75平现代两局

现代一居

现代

现代简约

欧式

沪ICP备13002314号-1 沪B2-20170342 组织机构代码证:66439109—1

中国互联网协会信用评价中心网信认证 网信编码:1664391091 举报电话:400-660-7700

齐家网 版权所有Copyright © 2005- www.jia.com All rights reserved

回到顶部

扫一扫,关注我们

齐家官方微信

温馨提示

取消 同意并继续