扫码下载 齐家APP
海量装修干货解救装修小白
扫码下载APP
扫码查看小程序
扫码关注公众号
问题不能为空!快去添加问题吧!
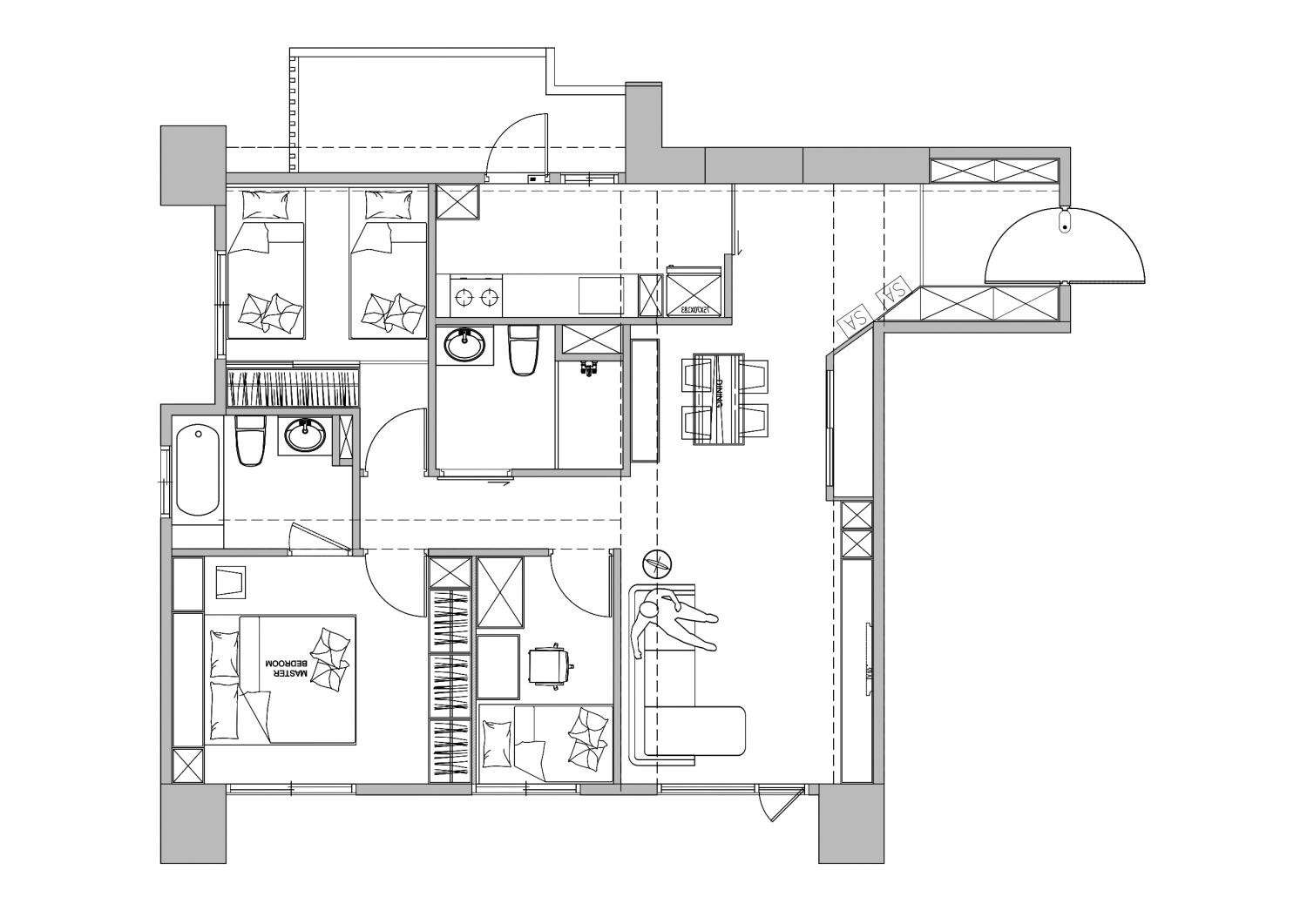
该户型为3居室2卫生间格局,对卫生间和卧室的门方向进行了调整。
入户门正对着厨房门,厨房门单独设计了一下是一个上吊柜门。
入户门右手边是一个鞋柜,入户门有一个过道,墙面粘了一面镜子,既可以扩大视野也方便生活使用。
餐厅和客厅连为一体是空间更大。
餐桌是一个组合式的,方便后期的使用空间。
房子是框架结构用大梁,整体越简单越好。
卧室改变格局增加衣柜的储物空间满足巨大的生活需求。
床头也做了一组柜子方便后期储物。
厨房整体选用白色色调使整体更干净。
卫生间也是简简单单显得干净整洁,方便后期打理。
75平现代两局
现代一居
现代
现代简约
欧式
热门搜索
口碑值:
已有人预约
口碑值计算方式:
开工(+4分)
预约(+1分)
投诉(-30分)
口碑分值有效期为90天
立即询价
刘晓阳首席设计师
工作年限:6年
设计理念:设计是包括功能、材料、工艺、造价、审美形式、艺术风格、精神意念等各种因素综合的创作。
请他帮我设计
沪ICP备13002314号-1 沪B2-20170342 组织机构代码证:66439109—1
中国互联网协会信用评价中心网信认证 网信编码:1664391091 举报电话:400-660-7700
齐家网 版权所有Copyright © 2005- www.jia.com All rights reserved
今日已有0用户预约装修
24小时内会有客服人员与您联系,确认您的具体需求
由于申请人数较多,完善资料可更快获取审核服务
扫一扫,关注齐家官方微信号
“您还可以在微信上找到更多装修服务”
扫一扫,关注我们
齐家官方微信
请阅读并同意《齐家用户协议》和《隐私政策》
取消 同意并继续