扫码下载 齐家APP
海量装修干货解救装修小白
扫码下载APP
扫码查看小程序
扫码关注公众号
问题不能为空!快去添加问题吧!
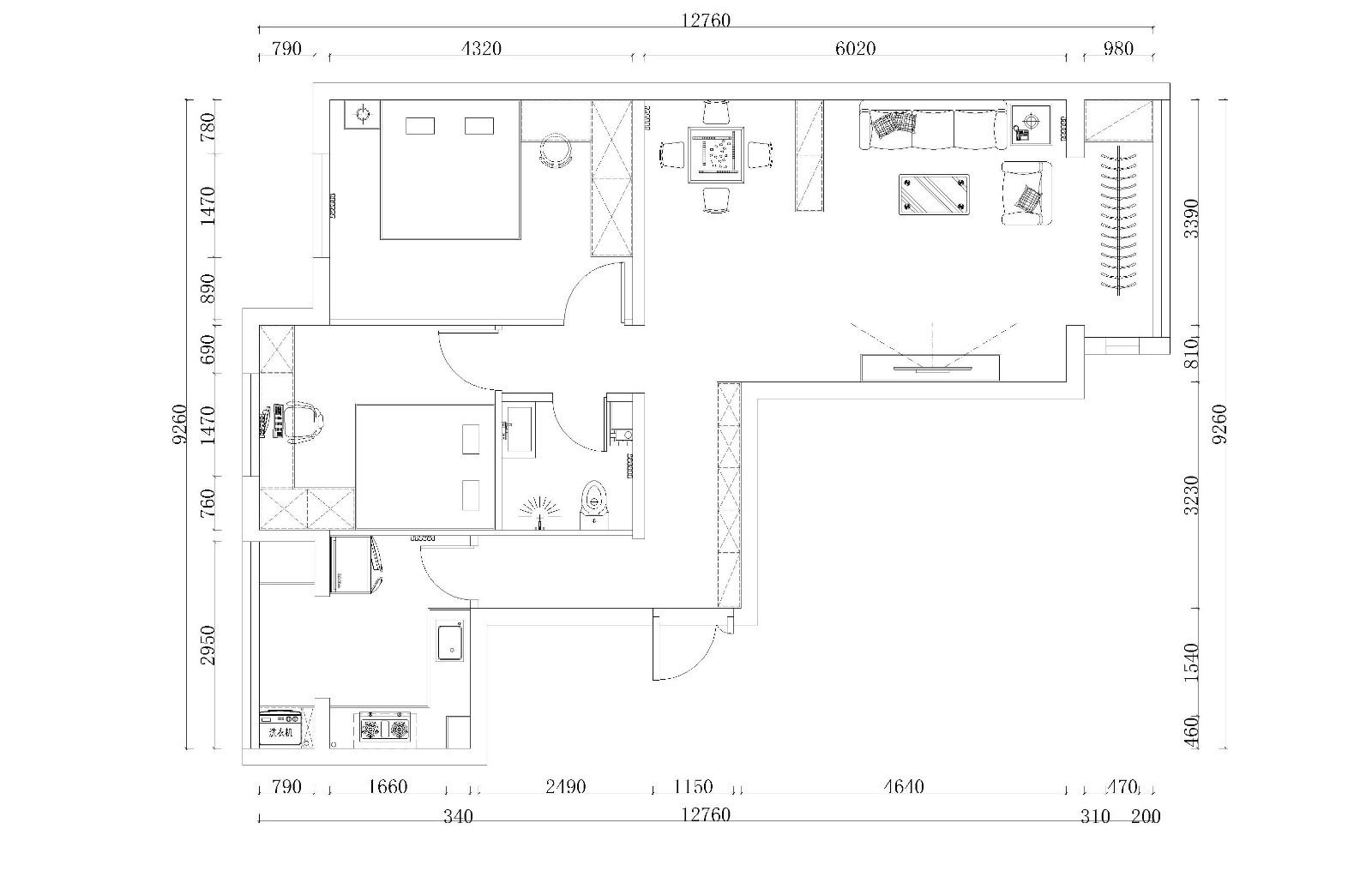
改善型装修,为了孩子上学使用,增加收纳和整体规划
满足一家人正常休闲使用,增大整个储物空间。
在不改变房子的结构用软装设计满足女主人的少女心
U字形的的橱柜能更好的增加厨房的使用率
满足日常的使用,利用简单的淋浴隔断做干湿分离。
75平现代两局
现代一居
现代
现代简约
欧式
热门搜索
口碑值:
已有人预约
口碑值计算方式:
开工(+4分)
预约(+1分)
投诉(-30分)
口碑分值有效期为90天
立即询价
董玉靖首席设计师
工作年限:10年
从业10余年还在不断学习的小董设计,设计不仅是美的追求,更是功能的体现,它是生活的一部分,是我们生活的点点滴滴。
请他帮我设计
沪ICP备13002314号-1 沪B2-20170342 组织机构代码证:66439109—1
中国互联网协会信用评价中心网信认证 网信编码:1664391091 举报电话:400-660-7700
齐家网 版权所有Copyright © 2005- www.jia.com All rights reserved
今日已有0用户预约装修
24小时内会有客服人员与您联系,确认您的具体需求
由于申请人数较多,完善资料可更快获取审核服务
扫一扫,关注齐家官方微信号
“您还可以在微信上找到更多装修服务”
扫一扫,关注我们
齐家官方微信
请阅读并同意《齐家用户协议》和《隐私政策》
取消 同意并继续