问题不能为空!快去添加问题吧!

齐家网 > 装修设计 > 保定装修 > 保定装修案例 > 现代简约风格

现代简约风格

116㎡ 普通住宅 简约 云海世家
造价:
9.9万

骨骼线橱柜和编织吊柜的组合,是打造南洋风格厨房的***选择。这两种元素分别从线条和材质上,精准地抓住了南洋风格的精髓。

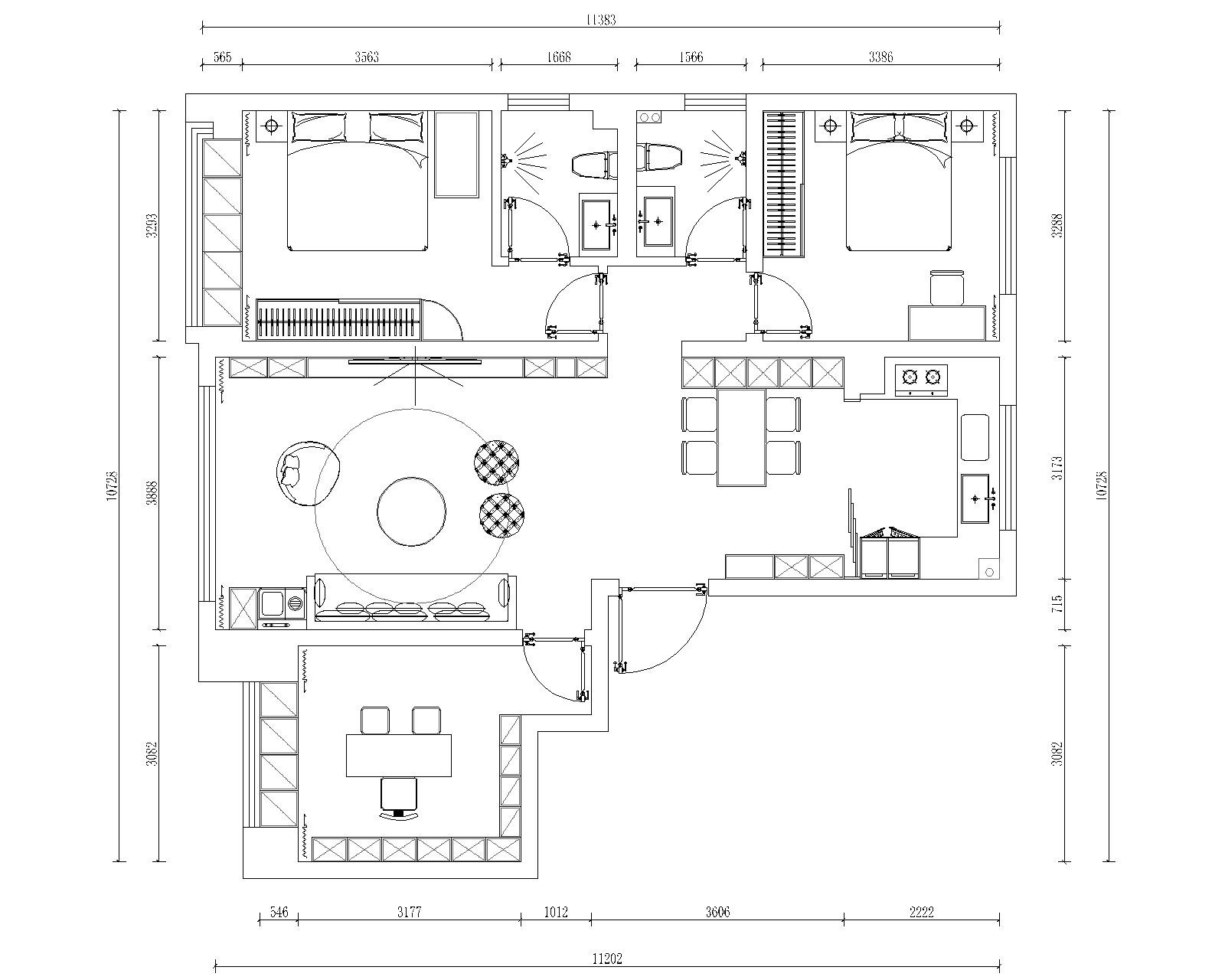
  • 全屋户型图

    骨骼线橱柜和编织吊柜的组合,是打造南洋风格厨房的***选择。这两种元素分别从线条和材质上,精准地抓住了南洋风格的精髓。

  • 客厅

    现代简约风格,核心就是“少即是多”,用最简洁的设计语言,打造出既实用又有格调的空间。

    以黑白灰为基础色调,加上木色营造冷静、理性的空间氛围。

    运用直线和几何形状,强调2空间的纵深感和秩序感。

    家具选择造型简单、线条流畅的款式。灯具本身就种艺术品,常采用设计感强的吊灯或轨追灯

  • 卧室

    在主卧里加一张母婴床,通常是为了方便照顾小宝宝,这是一个非常实用的设计

    在床尾打造满墙衣柜将梳妆台与衣柜相结合,衣柜内部可划分不同区域用于衣物收纳,梳妆台部分可设置在衣柜的一侧或中间位置,上方可做开放格放置化妆品,下方预留放腿空间,既实用又能提升房间的整体颜值。

< >

意式风格

意式极简风格

南洋风格

现代简约风格

法式复古风格

沪ICP备13002314号-1 沪B2-20170342 组织机构代码证:66439109—1

中国互联网协会信用评价中心网信认证 网信编码:1664391091 举报电话:400-660-7700

齐家网 版权所有Copyright © 2005- www.jia.com All rights reserved

回到顶部

扫一扫,关注我们

齐家官方微信

温馨提示

取消 同意并继续