问题不能为空!快去添加问题吧!

齐家网 > 装修设计 > 保定装修 > 保定装修案例 > 意式风格

意式风格

120㎡ 普通住宅 舒适 玫瑰园
造价:
13.5万

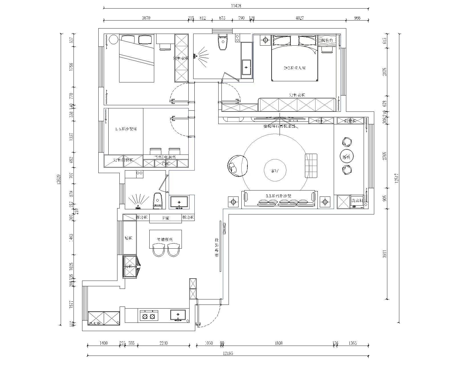
三室两厅户型中客厅餐厅错位,是指客厅和餐厅不在同一平面或线性连通,这种布局既有独特优势,也存在一定挑战。通过巧妙地设计,将餐厅和客厅分开,使得两个空间的功能更加明确

  • 全屋户型图

    三室两厅户型中客厅餐厅错位,是指客厅和餐厅不在同一平面或线性连通,这种布局既有独特优势,也存在一定挑战。通过巧妙地设计,将餐厅和客厅分开,使得两个空间的功能更加明确

  • 客厅

    采用多层次照明系统,悬浮顶四周围上一圈灯带作为基础照明,电视背景墙边缘用灯带勾勒轮廓,柜子内部采用层板灯带,营造含蓄的展示效果。

    延续意式风格的“低饱和***感”,墙面多采用米白、浅灰、暖杏色等中性色,搭配深木色餐边柜护墙板,营造沉稳氛围。

    优先保证“通透感”与“互动性”若与客厅相连

    偏爱“天然质感+金属点缀”的组趌实雉见展任跑

    意式餐厅以“优雅实用”为核心,将饮食文化与生活美学深度融合,既注重用餐场景的仪式感,又保留家庭聚会的温馨氛围,是传递意式生活哲学的重要空间

  • 卧室

    意式卧室设计融合了古典与现代元素,注重材质质感、色彩搭配和空间氛围营造,展现出优雅、简洁且舒适的风格特点

    遵循对称美学,衣柜采用对开门加中线装饰线。

    以低饱和的米白、浅灰等中性色打底,搭配胡桃木等深色木质家具或黑色金属装饰,增加层次感。

  • 卫生间

    卫生间干湿分离是指将卫生间内的淋浴区(湿区)与洗手台其他功能区(干区)进行物理分隔的设计理念

< >

意式风格

意式极简风格

南洋风格

现代简约风格

法式复古风格

沪ICP备13002314号-1 沪B2-20170342 组织机构代码证:66439109—1

中国互联网协会信用评价中心网信认证 网信编码:1664391091 举报电话:400-660-7700

齐家网 版权所有Copyright © 2005- www.jia.com All rights reserved

回到顶部

扫一扫,关注我们

齐家官方微信

温馨提示

取消 同意并继续