问题不能为空!快去添加问题吧!

齐家网 > 装修设计 > 霸州装修 > 霸州装修案例 > 婚房年轻人的凡尔赛

婚房年轻人的凡尔赛

80㎡ 两房 现代 门头沟新河路小区
造价:
11万

婚房为主,年轻人夫妻两个人,整体现代风格,黑白灰为主,开放式厨房,主卧为网红双眼皮设计,客厅为餐桌吧设计。

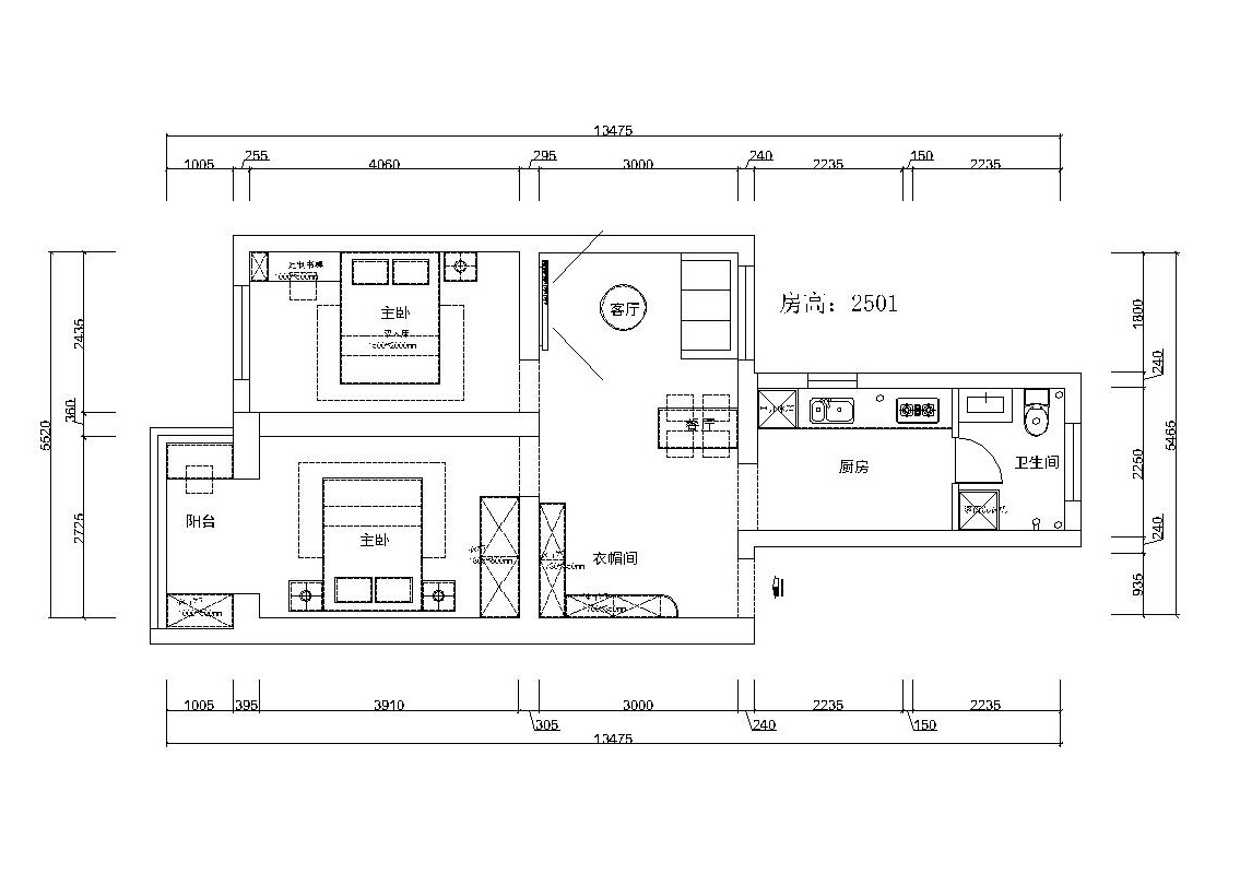
  • 全屋户型图

    婚房为主,年轻人夫妻两个人,整体现代风格,黑白灰为主,开放式厨房,主卧为网红双眼皮设计,客厅为餐桌吧设计。

  • 客厅

    客厅黑白灰搭配,电视墙也是简单的乳胶漆的,大的挂画点睛让本来平平无实的大白墙保留了极简的气息同时增加了很多装饰感。

  • 卧室

    主卧背景和窗帘都小吊灯都选择带有点轻奢风。

    次卧榻榻米设计,1,2米小床家里来客人可以休息。平时作为书房和钢琴室。

  • 厨房

    厨房瓷砖整体白色上墙,浅灰与白色搭配的厨房干净整洁。

  • 卫生间

    干湿分离,简洁明亮。

< >

简约办工

柔和的色调,温暖的材质

95秋意盎然

65现代风格

温柔奶油风小家

沪ICP备13002314号-1 沪B2-20170342 组织机构代码证:66439109—1

中国互联网协会信用评价中心网信认证 网信编码:1664391091 举报电话:400-660-7700

齐家网 版权所有Copyright © 2005- www.jia.com All rights reserved

回到顶部

扫一扫,关注我们

齐家官方微信

温馨提示

取消 同意并继续