扫码下载 齐家APP
海量装修干货解救装修小白
扫码下载APP
扫码查看小程序
扫码关注公众号
问题不能为空!快去添加问题吧!
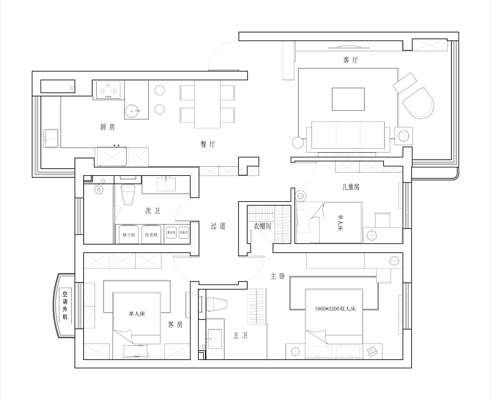
三房平层,入户拐角式玄关,开放式厨房餐厅一体,套间主卧
现代简约风格客厅,没有过多的刻意装饰,满足基础使用功能的同时,追求简单
简约风格卧室,白色调为主,用强对比色的黑色床体突出主体,原木色地板过度强对比色起到柔和效果
现代风格厨房,浅色调为主,强烈划分层次,让杂乱的厨房也有秩序
中古风
包豪斯
原木风
法式中古
奶油
热门搜索
口碑值:
已有人预约
口碑值计算方式:
开工(+4分)
预约(+1分)
投诉(-30分)
口碑分值有效期为90天
立即询价
沪ICP备13002314号-1 沪B2-20170342 组织机构代码证:66439109—1
中国互联网协会信用评价中心网信认证 网信编码:1664391091 举报电话:400-660-7700
齐家网 版权所有Copyright © 2005- www.jia.com All rights reserved
今日已有0用户预约装修
24小时内会有客服人员与您联系,确认您的具体需求
由于申请人数较多,完善资料可更快获取审核服务
扫一扫,关注齐家官方微信号
“您还可以在微信上找到更多装修服务”
扫一扫,关注我们
齐家官方微信
请阅读并同意《齐家用户协议》和《隐私政策》
取消 同意并继续