问题不能为空!快去添加问题吧!

齐家网 > 装修设计 > 北京装修 > 北京装修案例 > 现代轻奢的开放式厨房

现代轻奢的开放式厨房

123㎡ 三房 现代轻奢 皇冠花园
造价:
23万

本案是皇冠花园123平的户型,一厨两卫两阳台,户型南北通风,功能分布舒服,楼层高看得远,风景也不错。户型上的缺点在于厨房的位置比较小,冰箱放进厨房操作台不够用,大阳台的位置太大,不封窗就浪费了,主卧的位置卫生间门正对着床的位置,风水上没那么好。设计师和业主多次沟通后,最终方案如下,整体改动比较大的是客餐厅的位置,尽量满足家四口在公共区域的活动。

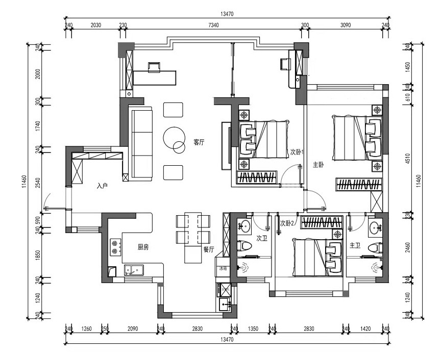
  • 全屋户型图

    本案是皇冠花园123平的户型,一厨两卫两阳台,户型南北通风,功能分布舒服,楼层高看得远,风景也不错。户型上的缺点在于厨房的位置比较小,冰箱放进厨房操作台不够用,大阳台的位置太大,不封窗就浪费了,主卧的位置卫生间门正对着床的位置,风水上没那么好。设计师和业主多次沟通后,最终方案如下,整体改动比较大的是客餐厅的位置,尽量满足家四口在公共区域的活动。

  • 客厅

    走进客厅,沙发背景墙做了木饰面和岩板装饰,颜色协调美观,和对面温润如玉的鱼肚白岩板电视背景墙相映成趣。

    厨房位置克服了原有结构的缺点,设计成了L型半开放厨房,餐厅中间放置岛台,旁边打了一组餐边柜+斜柜+冰箱柜,冰箱的位置就挪到了餐厅,厨房的空间利用率变高了,也变得宽敞很多。

  • 卧室

    主卧的位置卫生间门正对着床的位置,设计师和业主多次沟通后,最终方案利用定制柜作了遮挡。

< >

壹城中心大宅设计

壹城中心意式大宅

奥园尚雅大宅设计

金悦华府实景案例展示

隆生鹿江花园实景案例展示

沪ICP备13002314号-1 沪B2-20170342 组织机构代码证:66439109—1

中国互联网协会信用评价中心网信认证 网信编码:1664391091 举报电话:400-660-7700

齐家网 版权所有Copyright © 2005- www.jia.com All rights reserved

回到顶部

扫一扫,关注我们

齐家官方微信

温馨提示

取消 同意并继续