问题不能为空!快去添加问题吧!

齐家网 > 装修设计 > 北京装修 > 北京装修案例 > 43㎡现代简约二居

43㎡现代简约二居

43㎡ 别墅 港式 地博随园
造价:
6.45万

家,不仅仅是一个遮风挡雨的物理空间,它是一个充满爱与记忆的避风港,一个灵魂得以栖息的温暖所在。

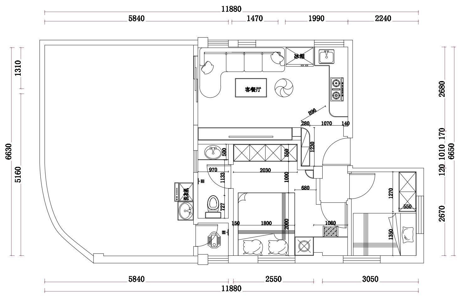
  • 全屋户型图

    家,不仅仅是一个遮风挡雨的物理空间,它是一个充满爱与记忆的避风港,一个灵魂得以栖息的温暖所在。

  • 客厅

    客厅与厨房两盏吸顶灯设计显得干净利落,电视背景墙涂刷淡黄色墙漆,不会显得单调,电视柜做了地柜和置物格满足基础收纳。

    客厅与厨房两盏吸顶灯设计显得干净利落,电视背景墙涂刷淡黄色墙漆,不会显得单调,电视柜做了地柜和置物格满足基础收纳。

    客厅与厨房两盏吸顶灯设计显得干净利落,电视背景墙涂刷淡黄色墙漆,不会显得单调,电视柜做了地柜和置物格满足基础收纳。

    客厅与厨房两盏吸顶灯设计显得干净利落,电视背景墙涂刷淡黄色墙漆,不会显得单调,电视柜做了地柜和置物格满足基础收纳。

    客厅与厨房两盏吸顶灯设计显得干净利落,电视背景墙涂刷淡黄色墙漆,不会显得单调,电视柜做了地柜和置物格满足基础收纳。

    客厅与厨房两盏吸顶灯设计显得干净利落,电视背景墙涂刷淡黄色墙漆,不会显得单调,电视柜做了地柜和置物格满足基础收纳。

    客厅与厨房两盏吸顶灯设计显得干净利落,电视背景墙涂刷淡黄色墙漆,不会显得单调,电视柜做了地柜和置物格满足基础收纳。

    客厅与厨房两盏吸顶灯设计显得干净利落,电视背景墙涂刷淡黄色墙漆,不会显得单调,电视柜做了地柜和置物格满足基础收纳。

    客厅与厨房两盏吸顶灯设计显得干净利落,电视背景墙涂刷淡黄色墙漆,不会显得单调,电视柜做了地柜和置物格满足基础收纳。

  • 卧室

    主卧延续了客厅的基调,浅黄色+白色的搭配,进门书桌+床头柜的组合,床尾靠墙定制的到顶衣柜,氛围灯带提升室内的情调,设计简约而质感,在视觉上营造出恬静温暖感。

    主卧延续了客厅的基调,浅黄色+白色的搭配,进门书桌+床头柜的组合,床尾靠墙定制的到顶衣柜,氛围灯带提升室内的情调,设计简约而质感,在视觉上营造出恬静温暖感。

    主卧延续了客厅的基调,浅黄色+白色的搭配,进门书桌+床头柜的组合,床尾靠墙定制的到顶衣柜,氛围灯带提升室内的情调,设计简约而质感,在视觉上营造出恬静温暖感。

    主卧延续了客厅的基调,浅黄色+白色的搭配,进门书桌+床头柜的组合,床尾靠墙定制的到顶衣柜,氛围灯带提升室内的情调,设计简约而质感,在视觉上营造出恬静温暖感。

    主卧延续了客厅的基调,浅黄色+白色的搭配,进门书桌+床头柜的组合,床尾靠墙定制的到顶衣柜,氛围灯带提升室内的情调,设计简约而质感,在视觉上营造出恬静温暖感。

    主卧延续了客厅的基调,浅黄色+白色的搭配,进门书桌+床头柜的组合,床尾靠墙定制的到顶衣柜,氛围灯带提升室内的情调,设计简约而质感,在视觉上营造出恬静温暖感。

  • 厨房

    开放式的厨房设计,增强室内视野,让空间更加通透宽敞。厨房整体以黑白灰为主,灰色柜子与黑色厨具搭配,视觉清爽简洁。

    开放式的厨房设计,增强室内视野,让空间更加通透宽敞。厨房整体以黑白灰为主,灰色柜子与黑色厨具搭配,视觉清爽简洁。

    开放式的厨房设计,增强室内视野,让空间更加通透宽敞。厨房整体以黑白灰为主,灰色柜子与黑色厨具搭配,视觉清爽简洁。

    开放式的厨房设计,增强室内视野,让空间更加通透宽敞。厨房整体以黑白灰为主,灰色柜子与黑色厨具搭配,视觉清爽简洁。

  • 卫生间

    卫生间内部通铺大理石纹瓷砖,灰色纹理浴室柜与卫浴空间极搭,洗手台下方的柜子与+镜柜也满足日常用品的收纳。

    卫生间内部通铺大理石纹瓷砖,灰色纹理浴室柜与卫浴空间极搭,洗手台下方的柜子与+镜柜也满足日常用品的收纳。

    卫生间内部通铺大理石纹瓷砖,灰色纹理浴室柜与卫浴空间极搭,洗手台下方的柜子与+镜柜也满足日常用品的收纳。

    卫生间内部通铺大理石纹瓷砖,灰色纹理浴室柜与卫浴空间极搭,洗手台下方的柜子与+镜柜也满足日常用品的收纳。

< >

90㎡奶油法式的温馨

110㎡意式轻奢大宅

120㎡极简的***感

靖湖湾

190㎡宋氏美学的魅力

沪ICP备13002314号-1 沪B2-20170342 组织机构代码证:66439109—1

中国互联网协会信用评价中心网信认证 网信编码:1664391091 举报电话:400-660-7700

齐家网 版权所有Copyright © 2005- www.jia.com All rights reserved

回到顶部

扫一扫,关注我们

齐家官方微信

温馨提示

取消 同意并继续