问题不能为空!快去添加问题吧!

齐家网 > 装修设计 > 北京装修 > 北京装修案例 > 现代简约装饰风格

现代简约装饰风格

135㎡ 大平层 现代 棉湖一号
造价:
3万

此户型为标准的小三房,户型痛点是客餐厅区域太小,厨房不能满足客户烹饪及储物功能;设计上,将阳台区域并入客厅区域,将晾晒功能放置在入户花园部分,厨房缩小,放大餐厅的同时,将部分厨房储物烹饪功能放置在餐厅,整理以现代简约风格设计,放大空间感,打造舒适简约的生活空间;

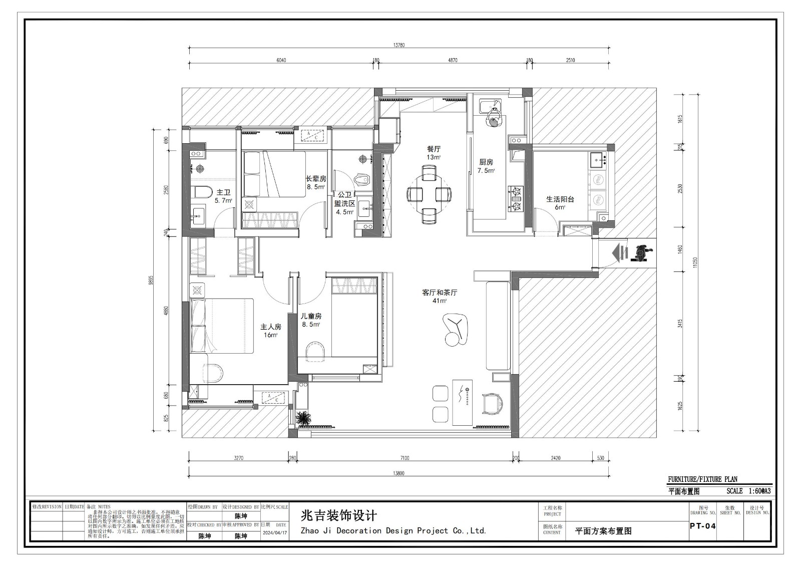
  • 全屋户型图

    此户型为标准的小三房,户型痛点是客餐厅区域太小,厨房不能满足客户烹饪及储物功能;设计上,将阳台区域并入客厅区域,将晾晒功能放置在入户花园部分,厨房缩小,放大餐厅的同时,将部分厨房储物烹饪功能放置在餐厅,整理以现代简约风格设计,放大空间感,打造舒适简约的生活空间;

  • 客厅

    客厅以白色系墙面及造型电视背景为基础,点缀以木饰面,电视背景藏灯;天花以简约的走边天花,打造简约大方的客厅空间;

    餐厅考虑展示及储物柜体,以奶白色木饰面为基础,以宝格丽岩板点缀,玻璃柜门加灯光跳色,打造整洁明亮的就餐空间;

  • 卧室

    卧室以奶白色加白色乳胶漆作为背景墙,搭配线条感的床品,双眼皮天花装饰,飘窗部分玻璃柜体装饰,温馨舒适;

  • 厨房

    厨房墙面选择浅色石材纹理瓷砖,吊柜奶白色柜体,辅以木饰面地柜,满足厨房烹饪储物功能;打造温馨易使用的厨房空间;

  • 卫生间

    卫生间沿用奶白色设计定调,台盆应用木纹色作为跳色,整理空间简约易打理;

< >

现代台式温润质感私宅设计

现代极简·黑白灰质感设计

把爱琴海搬回家

雅致轻奢·自然共生空间

极简现代·质感生活空间

沪ICP备13002314号-1 沪B2-20170342 组织机构代码证:66439109—1

中国互联网协会信用评价中心网信认证 网信编码:1664391091 举报电话:400-660-7700

齐家网 版权所有Copyright © 2005- www.jia.com All rights reserved

回到顶部

扫一扫,关注我们

齐家官方微信

温馨提示

取消 同意并继续