问题不能为空!快去添加问题吧!

齐家网 > 装修设计 > 蚌埠装修 > 蚌埠装修案例 > 晕染不朽的浪漫情怀

晕染不朽的浪漫情怀

118㎡ 三房 新古典 雪溪苑
造价:
5万

和大多数业主一样,装修前,本案业主也看了很多装修美图和攻略,几番斟酌后,想在极简风格的清爽感与法式线条之间找到平衡,期待混搭带来的小惊喜。生活的心应当无所畏惧,纯粹如风,生活如是,设计亦是。比起单纯的装修,我们更想要构建的是一种气质和姿态,来抒发业主的内在气质和个人追求。

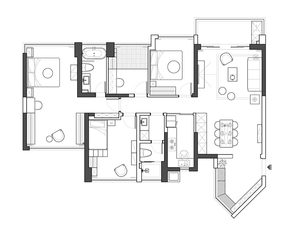
  • 全屋户型图

    和大多数业主一样,装修前,本案业主也看了很多装修美图和攻略,几番斟酌后,想在极简风格的清爽感与法式线条之间找到平衡,期待混搭带来的小惊喜。生活的心应当无所畏惧,纯粹如风,生活如是,设计亦是。比起单纯的装修,我们更想要构建的是一种气质和姿态,来抒发业主的内在气质和个人追求。

  • 客厅

    深灰色环抱式主沙发、粉色优雅单椅、墨绿色和灰色的落地款沙发凳……柔和的线条,细腻的质感,天鹅绒的高贵典雅为空间增添几分柔软和轻奢感,让人不由自主地沉溺其间。大理石与金属材质结合的茶几与边几也在彰显自己的存在,刚中有柔,恰到好处。

  • 卧室

    两分红的浪***烈,三分蓝的知性冷静,伴随五分包容的纯净素雅,是满怀憧憬、唯美浪漫的巴黎梦,更是心念之间内敛雅致的新居。世界那么大,总有一盏灯在等你回家,而在这个颜值控的世界里,非羽毛灯不可!天使的羽翼积聚着圣洁的光芒,流光溢出的瞬间仿佛置身于梦幻云端,一如既往的温柔。

  • 厨房

    用餐想要舒适又有颜值,储物功能不可或缺。餐厅另一边是到顶的定制柜,粉色与深灰色相间,流畅的线条设计没有任何多余的装饰,十分***

  • 卫生间

    白色简单却能搭配所有颜色,而且,还能让卫浴间更清爽、开阔,搭配蓝色浴室柜与金色小五金,打造典雅大气之感。三分离的空间设计也极为讲究,打造酒店般的体验,提升使用品质

< >

睿龙办公空间设计与施工

民宿设计

民宿设计

睿龙综合办公设计

天鹅湖花园大平层

沪ICP备13002314号-1 沪B2-20170342 组织机构代码证:66439109—1

中国互联网协会信用评价中心网信认证 网信编码:1664391091 举报电话:400-660-7700

齐家网 版权所有Copyright © 2005- www.jia.com All rights reserved

回到顶部

扫一扫,关注我们

齐家官方微信

温馨提示

取消 同意并继续