问题不能为空!快去添加问题吧!

齐家网 > 装修设计 > 长乐装修 > 长乐装修案例 > 隐匿于繁华都市的静谧

隐匿于繁华都市的静谧

96㎡ 三房 现代简约 天泉丽景
造价:
13万

鼓楼似一个时光的追溯者,一栋栋华丽的崛起,一套套陈旧的推翻,在瞬息万变间,见证着飞速发展的都市演变。摒弃对传统凡尘的执念,一心孤傲向前。

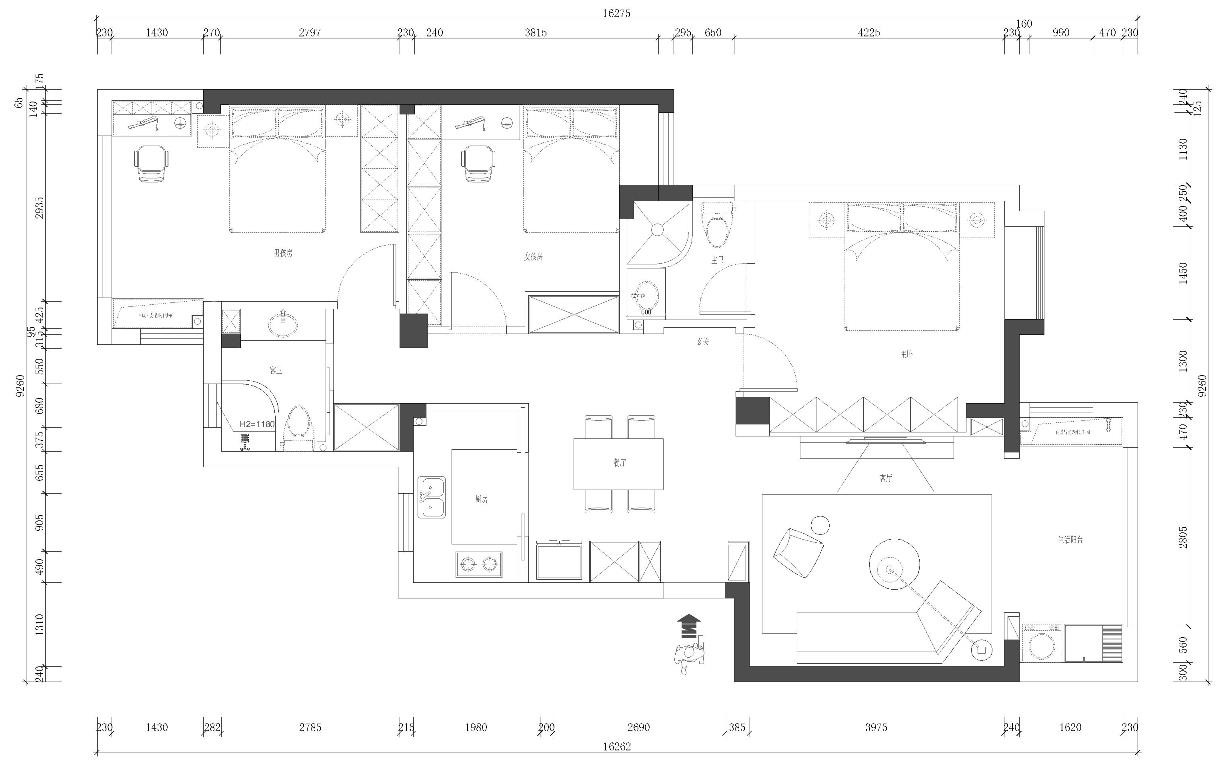
  • 全屋户型图

    鼓楼似一个时光的追溯者,一栋栋华丽的崛起,一套套陈旧的推翻,在瞬息万变间,见证着飞速发展的都市演变。摒弃对传统凡尘的执念,一心孤傲向前。

  • 客厅

    大理石纹路的自然肌理,与沙发调性相得益彰,柔软与坚固的属性相调,赋予了整个客厅更多灵动的可能。

    卸下每日归来的满身疲倦,毫不吝啬的用眼界装下一片纯粹。

    黑色壁龛的设计,生成沉稳的专属标签,让留白的空间多了一份安定与祥和,美观而不违和,实用更不刻板。

  • 卧室

    卧室衣柜的打造联动着整面墙体,完全满足收纳需求。大气的呈现,实质性的结合,让整个卧室充满十足的张力。

< >

113平方米储物功能

极简意式私宅平面改造

意式极简去客厅化精装改造

50***户型精装设计独居

纯粹的极简风住宅

沪ICP备13002314号-1 沪B2-20170342 组织机构代码证:66439109—1

中国互联网协会信用评价中心网信认证 网信编码:1664391091 举报电话:400-660-7700

齐家网 版权所有Copyright © 2005- www.jia.com All rights reserved

回到顶部

扫一扫,关注我们

齐家官方微信

温馨提示

取消 同意并继续