问题不能为空!快去添加问题吧!

齐家网 > 装修设计 > 长沙装修 > 长沙装修案例 > 73㎡北欧之家

73㎡北欧之家

73㎡ 三房 现代简约 福晟·闽江道1993
造价:
10万

户型改动: 1:厨房两侧都为承重墙,无法改动空间,因此,将冰箱与高柜外置,尽量增加厨房台面的操作空间。 2:将客厅的飘窗位置拆除,客厅位置上移。改变原先餐厅的位置,将餐厅位置上移。将原先的餐厅位置作为厨房高柜,冰箱以及家政柜。 3:公卫干湿分离,将原先进入卧室的过道整体下移。 4:客厅使用投影仪,将左侧的卧室作为书房使用。门使用三推拉门。书房内利用一部分柜子,做下翻床,为后期使用。

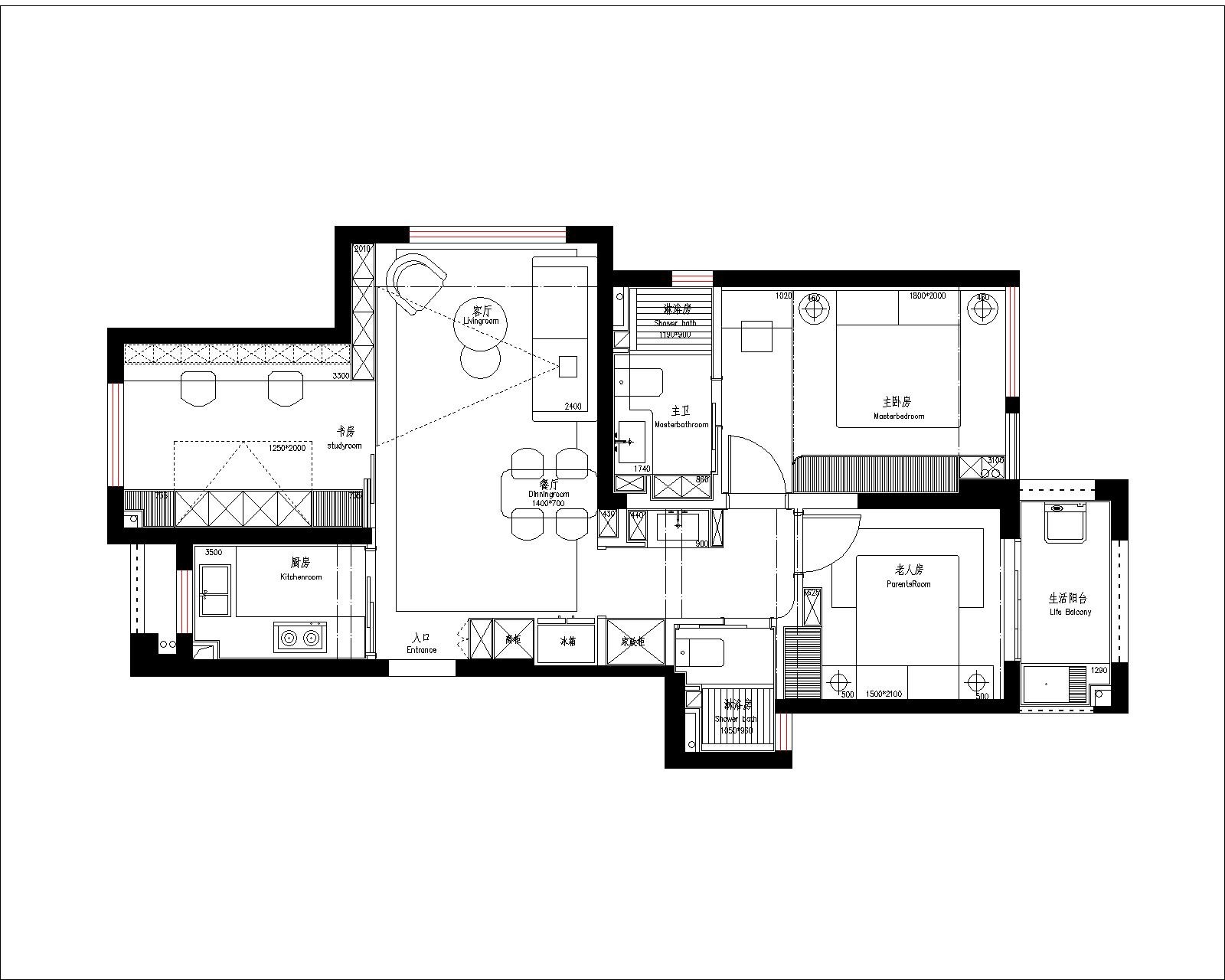
  • 全屋户型图

    户型改动: 1:厨房两侧都为承重墙,无法改动空间,因此,将冰箱与高柜外置,尽量增加厨房台面的操作空间。 2:将客厅的飘窗位置拆除,客厅位置上移。改变原先餐厅的位置,将餐厅位置上移。将原先的餐厅位置作为厨房高柜,冰箱以及家政柜。 3:公卫干湿分离,将原先进入卧室的过道整体下移。 4:客厅使用投影仪,将左侧的卧室作为书房使用。门使用三推拉门。书房内利用一部分柜子,做下翻床,为后期使用。

  • 客厅

    将原先的飘窗拆除后,客厅的自然光线更加充足,阳光能够进入室内,整体的色彩上采用自然色,白色,木纹,阳光对自然色彩更具吸引力。

    客餐厅一体化设计。原先的飘窗拆除之后,顶上有一根矮梁,为了保证整体的一个层高高度,且又能美观的修饰梁位,设计师将天花与墙面相结合,以弧形的形式将两者连接,线条灯带的添加更具美感。餐厅边的门洞也以弧形门洞做修饰,空间感更加柔和。客厅使用哑光地砖,不反光,且方便打理卫生。

    在沙发以及小家具的选择上,选择饱和度低的。

  • 卫生间

    半包围式干区。一侧为墙体,遮挡住台盆,避免在客厅可以直接看到。一侧用矮柜,空间通透感更强。墙面使用水磨石瓷砖。

  • 餐厅

    原木色搭配白色的空间自然舒适,加上设计感的吊灯,让精致的北欧氛围蔓延开来。

< >

113平方米储物功能

极简意式私宅平面改造

意式极简去客厅化精装改造

50***户型精装设计独居

纯粹的极简风住宅

沪ICP备13002314号-1 沪B2-20170342 组织机构代码证:66439109—1

中国互联网协会信用评价中心网信认证 网信编码:1664391091 举报电话:400-660-7700

齐家网 版权所有Copyright © 2005- www.jia.com All rights reserved

回到顶部

扫一扫,关注我们

齐家官方微信

温馨提示

取消 同意并继续