问题不能为空!快去添加问题吧!

齐家网 > 装修设计 > 重庆装修 > 重庆装修案例 > ***黑

***黑

70㎡ 两房 现代 两江新宸
造价:
6万

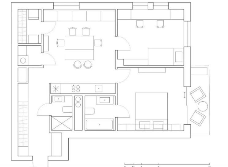
开放的厨房占据公寓中心位置 两间卧室位于 右侧,主卧套房还带有独立卫浴 和小阳台,客厅当中 另设公共卫生间、储藏室

  • 全屋户型图

    开放的厨房占据公寓中心位置 两间卧室位于 右侧,主卧套房还带有独立卫浴 和小阳台,客厅当中 另设公共卫生间、储藏室

  • 客厅

    墙上挂着一幅抽象画,黑白分明的立体感,填补墙面空白

  • 卧室

    卧室选用较为 温柔的暖色系,软包饰面拼成竖条 带有一种明快的肌理感

  • 厨房

    开放的区块设计 加上明晰的色块组合 让餐厨区功能与质感兼备

  • 卫生间

    卫生间选用黑色哑光 六角瓷砖,与木纹的肌理形成碰撞

< >

现代简约风

巴滨一号

象屿两江御府

九阙府

新东福花园

沪ICP备13002314号-1 沪B2-20170342 组织机构代码证:66439109—1

中国互联网协会信用评价中心网信认证 网信编码:1664391091 举报电话:400-660-7700

齐家网 版权所有Copyright © 2005- www.jia.com All rights reserved

回到顶部

扫一扫,关注我们

齐家官方微信

温馨提示

取消 同意并继续