问题不能为空!快去添加问题吧!

齐家网 > 装修设计 > 重庆装修 > 重庆装修案例 > 花山郡120平日式风

花山郡120平日式风

120㎡ 三房 日式 江南花山郡
造价:
16.5万

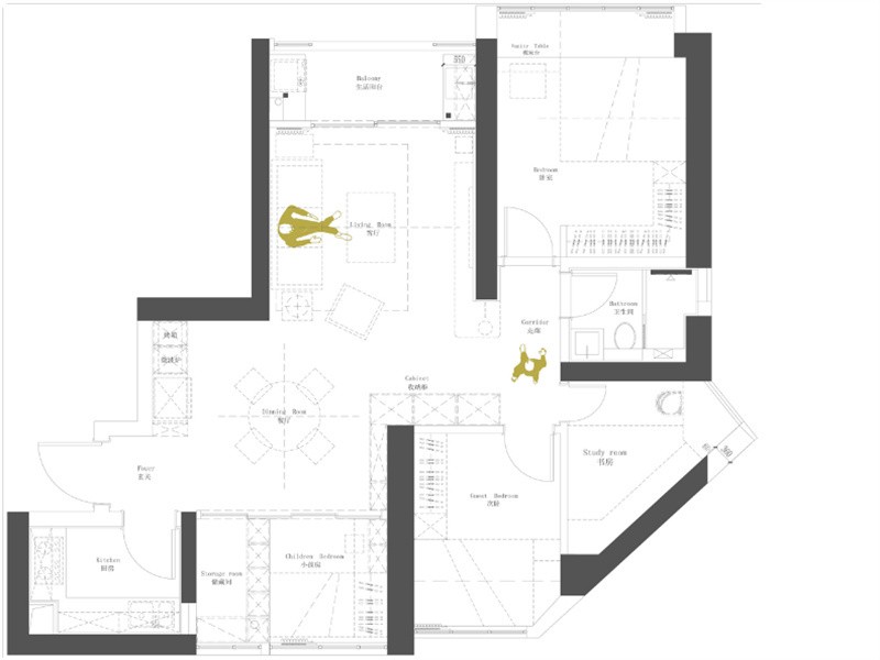
高层建筑承重墙是比较多的,且在此户型中尤其突出。如何针对原来的户型格局,我们做***化的改动,来满足业主的需求。

  • 全屋户型图

    高层建筑承重墙是比较多的,且在此户型中尤其突出。如何针对原来的户型格局,我们做***化的改动,来满足业主的需求。

  • 客厅

    墙面挂的就是大小不一的老木头拼画。空间的质感层次也就丰富了起来,和“扁平、单一”的背景墙say goodbye。

    电视柜我们采用悬空的设计,底部藏有灯柱,烘托夜间客厅氛围,主要还是考虑到便于清洁卫生,台面用的古堡灰大理石,耐用易于打理

  • 卧室

    主卧室的背景也是用浅灰***术涂料, 飘窗设计了一个简易梳妆台, 也可当做工作或夜读的小空间。

    儿童房床的尺寸是经过计算的, 因为要在小空间里把功能做到***, 每一寸每一厘都要精益求精, 儿童房的墙面和地面都利用了

    父母房床的位置原来为飘窗,把床的高度设计跟飘窗齐平,同时还多了一排收纳抽屉,天花吊顶把飘窗包裹起来,使空间显得方正

    能把书房这超异型的空间折腾出个模样, 简直是对设计师的大考验! 难度系数:★★★★★ 榻榻米和写字台结合起来

  • 厨房

    橱柜颜色搭配与整个房子的色调相呼应

  • 餐厅

    餐厅正面设计满墙的餐边柜,柜门用白色,让空间更加的明亮。中间的镂空设计,可以放小电器和其他物品

< >

望江府 | 奶油风

福兴花园-现代风格

朗诗里程

冶建花园

现代简约风

沪ICP备13002314号-1 沪B2-20170342 组织机构代码证:66439109—1

中国互联网协会信用评价中心网信认证 网信编码:1664391091 举报电话:400-660-7700

齐家网 版权所有Copyright © 2005- www.jia.com All rights reserved

回到顶部

扫一扫,关注我们

齐家官方微信

温馨提示

取消 同意并继续