问题不能为空!快去添加问题吧!

齐家网 > 装修设计 > 大连装修 > 大连装修案例 > 中性色打造简约之美

中性色打造简约之美

178㎡ 大平层 现代 南山首府
造价:
19万

以理性思考的形式回归家居空间,展现舒适细致的人文关怀,规划灵动开放的布局与智能生活的理念。在注重秩序与功能的同时,注入平和、稳重的气韵,用安静与艺术的方式表达品质空间

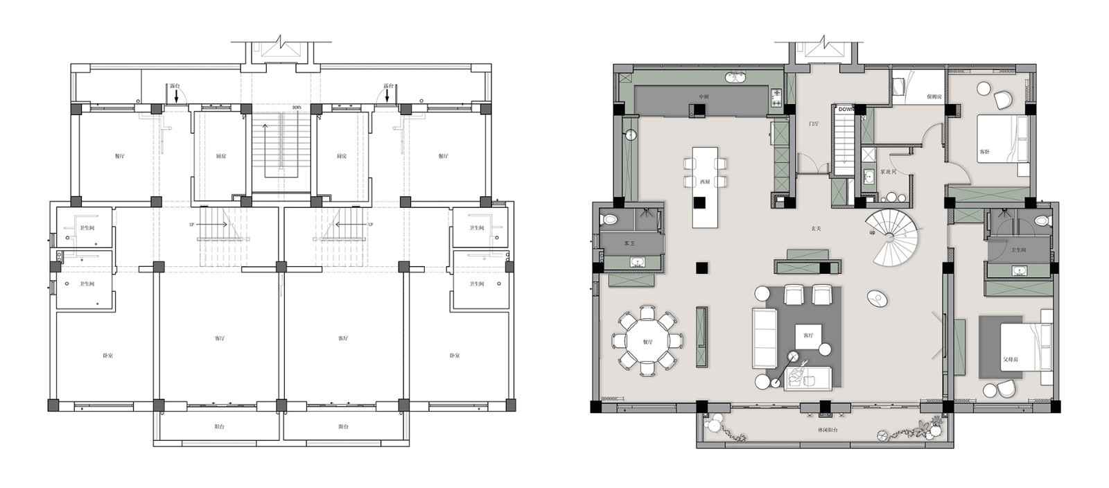
  • 全屋户型图

    以理性思考的形式回归家居空间,展现舒适细致的人文关怀,规划灵动开放的布局与智能生活的理念。在注重秩序与功能的同时,注入平和、稳重的气韵,用安静与艺术的方式表达品质空间

  • 客厅

    联通的客厅呈现出开阔、双倍的空间,更获得了双倍的光线和景致,通透明亮。为了消化承重的立柱,以瓷砖和白色乳胶漆围覆,形成明亮、多元的居家动线。

  • 卧室

    中性色同样蕴涵着家庭的温暖。带有折角变化的墙面装饰,铜元素的出现丰富了材质的运用和转换,独特的造型更是让它成为立面空间的视觉焦点,在这个相对简约的环境中,成为屋主艺术个性的低调表达。

  • 厨房

    中西厨分区,通过细边黑框玻璃移门,保留光线穿透性的高透玻璃,在开放式与封闭式之间自由切换。

  • 卫生间

    双台盆、落地浴缸、独立淋浴间和独立马桶间,简洁、现代的空间因为有尺寸的加持获得了极大的舒适体验。

< >

南石道街二手房改造

万科公园都会

和泰万家

兰丰巷

叠拼

沪ICP备13002314号-1 沪B2-20170342 组织机构代码证:66439109—1

中国互联网协会信用评价中心网信认证 网信编码:1664391091 举报电话:400-660-7700

齐家网 版权所有Copyright © 2005- www.jia.com All rights reserved

回到顶部

扫一扫,关注我们

齐家官方微信

温馨提示

取消 同意并继续