问题不能为空!快去添加问题吧!

齐家网 > 装修设计 > 鄂州装修 > 鄂州装修案例 > 海德公馆

海德公馆

81㎡ 三房 北欧 海德公馆
造价:
13万

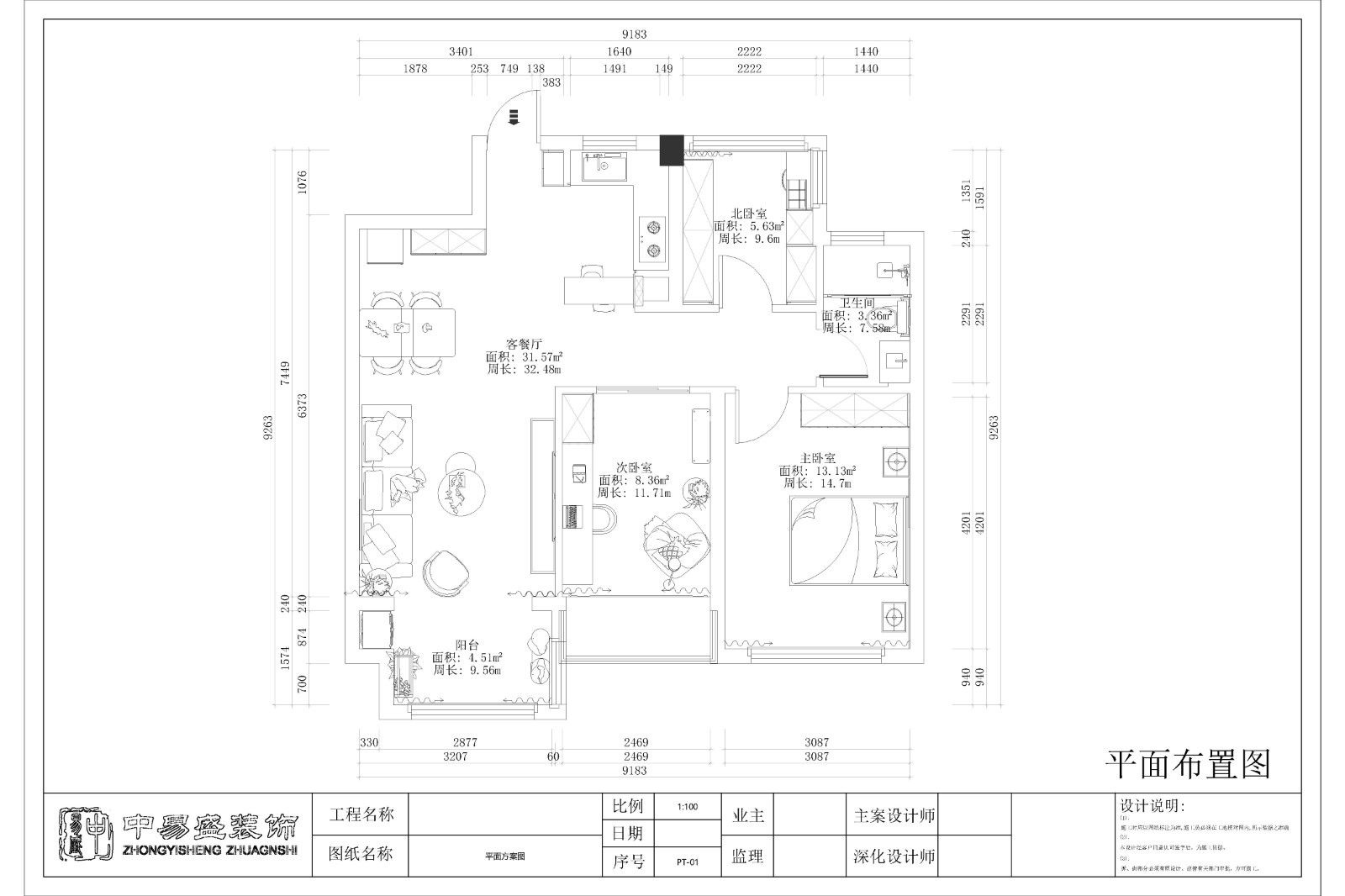
海德公馆81平方经典户型,北欧风格

  • 全屋户型图

    海德公馆81平方经典户型,北欧风格

  • 客厅

    沙发背景墙采用明装轨道射灯进行重点照明

    地面用人字铺木地板拼贴,增加空间层次

    沙发背景墙用文化石砖铺贴,增加空间质感

    电视墙用水泥漆材质,形成空间视觉两点,与其他材质形成对比

  • 卧室

    主卧室延续客餐厅的文化砖做为背景墙,无床头设计及半墙护墙板,悬空床头柜方便平时的卫生清扫

    书房设计大书桌增加实用性,放置懒人沙发及落地灯划分出阅读小角落

  • 厨房

    设计壁龛及小吧台,方便简餐及厨房区域划分

    本案设计为开放式厨房,原木色地柜白色吊柜,搭配经典黑白格子砖,凸显北欧极简格调

  • 卫生间

    卫生间奶油风花砖搭配,上墙***色瓷砖搭配下墙纯白哑光砖,地面绿色小花砖点缀

< >

原木风新家|进门就被治愈

中古与温柔撞个满怀

新中式风格装修案例

原木治愈,温润居家

现代简约风

沪ICP备13002314号-1 沪B2-20170342 组织机构代码证:66439109—1

中国互联网协会信用评价中心网信认证 网信编码:1664391091 举报电话:400-660-7700

齐家网 版权所有Copyright © 2005- www.jia.com All rights reserved

回到顶部

扫一扫,关注我们

齐家官方微信

温馨提示

取消 同意并继续