问题不能为空!快去添加问题吧!

齐家网 > 装修设计 > 昆明装修 > 昆明装修案例 > 意式风格

意式风格

134㎡ 大平层 意式 北京
造价:
15万

意式轻奢,简约线条在讲述真正的永恒经典,脱离一切浮华和不实用,从生活的本质出发,以极简的设计演绎最本质的轻奢美学。它不止于风格,更多的是展示其品质。 当下消费者越来越追求品质生活,作为生活的载体,意式家居对品质也极为讲究。

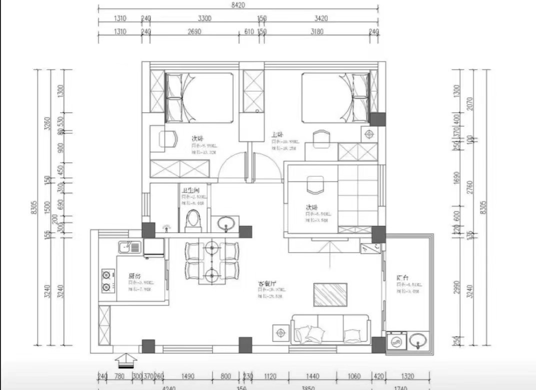
  • 全屋户型图

    意式轻奢,简约线条在讲述真正的永恒经典,脱离一切浮华和不实用,从生活的本质出发,以极简的设计演绎最本质的轻奢美学。它不止于风格,更多的是展示其品质。 当下消费者越来越追求品质生活,作为生活的载体,意式家居对品质也极为讲究。

  • 客厅

    作为家庭成员的共享生活空间,它不仅是多元化的,更是全龄化,多功能化的

  • 卧室

    与供家庭成员交互的共享空间不同,私享领域更加重视个人体验的私密感与舒适度。

  • 厨房

  • 卫生间

    金色的龙头,搭配镜面的暖色灯光,氛围感已经到位。身临其境更加精致

< >

中古风

包豪斯

原木风

法式中古

奶油

沪ICP备13002314号-1 沪B2-20170342 组织机构代码证:66439109—1

中国互联网协会信用评价中心网信认证 网信编码:1664391091 举报电话:400-660-7700

齐家网 版权所有Copyright © 2005- www.jia.com All rights reserved

回到顶部

扫一扫,关注我们

齐家官方微信

温馨提示

取消 同意并继续