问题不能为空!快去添加问题吧!

齐家网 > 装修设计 > 昆明装修 > 昆明装修案例 > 弛感空间

弛感空间

200㎡ 四房 现代 楼盘
造价:
54万

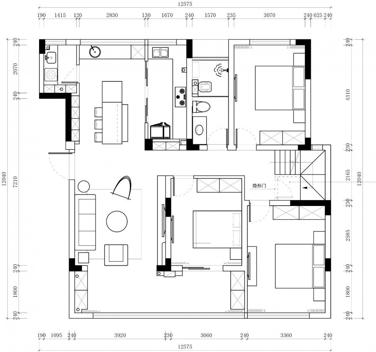
本案例户型四室两厅两卫

  • 全屋户型图

    本案例户型四室两厅两卫

  • 客厅

    全屋用到纯净的白色,整体空间明亮,灰色的哑光砖搭配暖白色乳胶漆

    入户门刚好在沙发旁,为了保证沙发墙面的完整性,没有做传统的门套,而是和整个沙发背景墙一起做造型,显得更协调统一

    软装色调由深到浅,呼应墙面的白,黑棕作为点缀色,着重空间比例范围,用到一些肌理纹理,突出自然风的自然。

  • 卧室

    房间干净明亮,墙面装饰为小朋友的创作,清新可爱 和空间协调。

    儿童房衣柜也采用全屋统一的中古色 ,但是又不想空间显得太沉闷 特意加入了一些童趣的拉手

    次卧干净素雅,让老人居住可以得到放松宁静。

  • 厨房

    餐厅色调统一,餐椅采用木制加藤编,更具舒适性。

    把原始阳台的位置一分为三,增加西厨功能扩大中厨空间,同时保留小的生活阳台 方便住一楼的老人;

  • 卫生间

    利用之前露台的空间打造采光不错的卫生间,满足了业主对双台盆和浴缸的需求。

< >

现代奶油风 | 南丹路

法式风 | 法华苑

奶油风 | 宝怡花苑

意式极简风 | 露香园

中古风 | 康桥水都

沪ICP备13002314号-1 沪B2-20170342 组织机构代码证:66439109—1

中国互联网协会信用评价中心网信认证 网信编码:1664391091 举报电话:400-660-7700

齐家网 版权所有Copyright © 2005- www.jia.com All rights reserved

回到顶部

扫一扫,关注我们

齐家官方微信

温馨提示

取消 同意并继续