问题不能为空!快去添加问题吧!

齐家网 > 装修设计 > 昆明装修 > 昆明装修案例 > 现代风格

现代风格

120㎡ 两房 现代 金地梅陇镇
造价:
15万

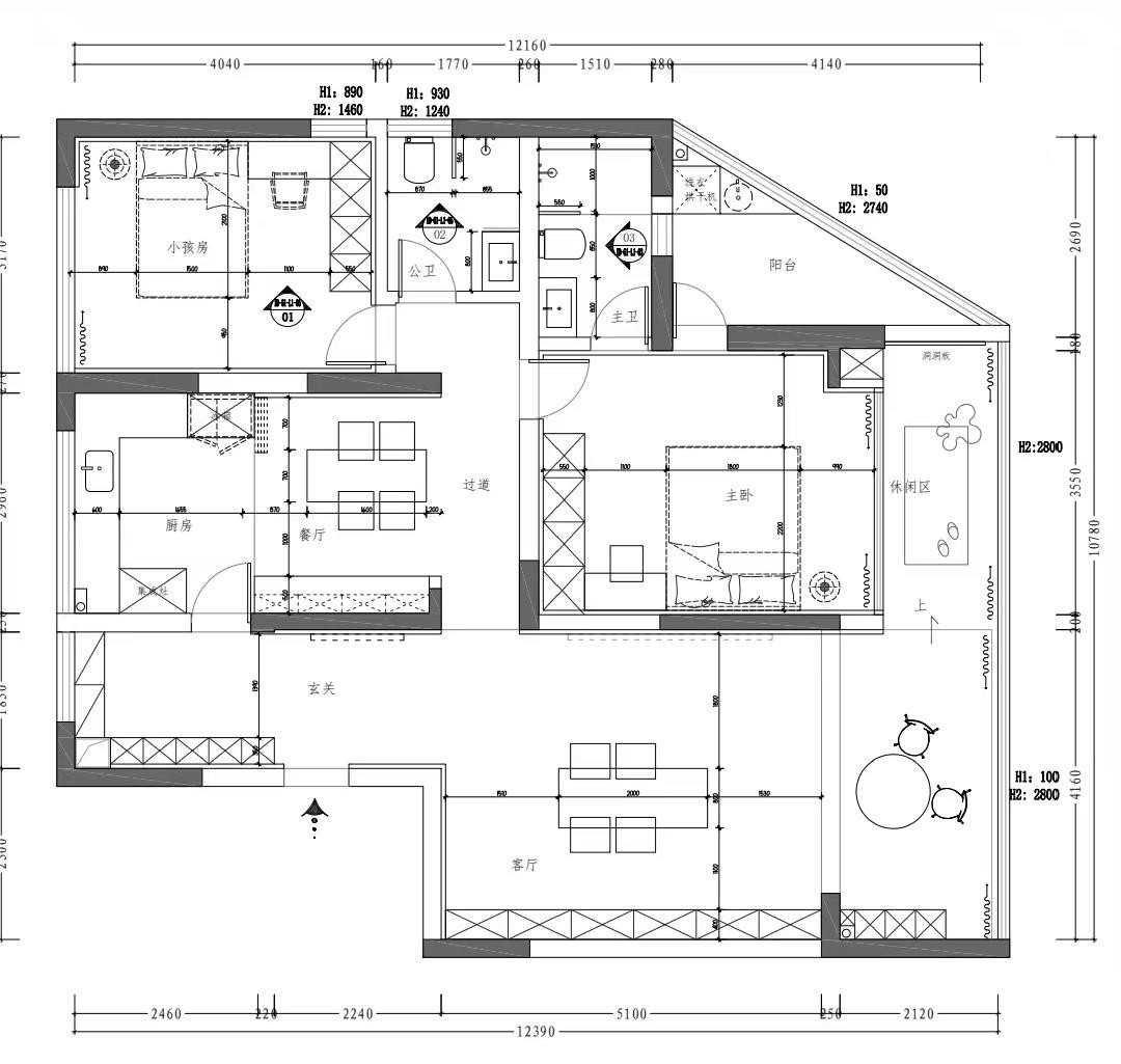
整体格局规整,厨房偏小,小阳台利用率不高,三房改两房,让空间更舒适,更大气

  • 全屋户型图

    整体格局规整,厨房偏小,小阳台利用率不高,三房改两房,让空间更舒适,更大气

  • 客厅

    去客厅化,让小孩更安静的去学习,和大人有很多的互动和接触;书柜满墙的设计,满足小孩日后书籍的储藏,也更能让小孩沉静在书的海洋里快乐的学习,满墙的设计也显得更加的大气

  • 卧室

    小孩房暖色调的设计,让小孩更加容易入睡

    主卧简单的设计,不会让主人视觉疲劳,灯光的多种设计,让空间多元化,更有层次感

  • 厨房

    厨房开放的设计,让小孩和大人有互动性和参与感;西厨的设计可很好缓解厨房台面带来的压力,集成灶的设计让吊顶更加简洁

  • 卫生间

    卫生间设计简单明亮,浴室镜做到马桶旁让整个空间大气

  • 玄关

    玄关的设计,让进门有个仪式感,鞋柜换鞋凳的设计,让主人进门可以坐下来换鞋

< >

原木极简·暖调治愈

现代简约·活力红调

极简***·黑白灰质感

现代侘寂风空间设计

89平现代简约设计

沪ICP备13002314号-1 沪B2-20170342 组织机构代码证:66439109—1

中国互联网协会信用评价中心网信认证 网信编码:1664391091 举报电话:400-660-7700

齐家网 版权所有Copyright © 2005- www.jia.com All rights reserved

回到顶部

扫一扫,关注我们

齐家官方微信

温馨提示

取消 同意并继续