问题不能为空!快去添加问题吧!

齐家网 > 装修设计 > 平凉装修 > 平凉装修案例 > 现代风

现代风

130㎡ 大平层 现代 海岸城
造价:
20万

家的包容性更多的体现在适变度上,因为它一定是 随着居住者而共生的,会共同经历岁月的更迭,角色 的变化。经得住未来生活的洗礼,随着时间流逝,陪 伴业主并显露出岁月的厚爱。于是我们从诉求出发, 通过结果反推,选择让空间基调简约干净且富有包容 性。这一次的文案是热爱生活的小周一起完成的,她 说:自己参与了新家过程,想用真实感受去叙述。

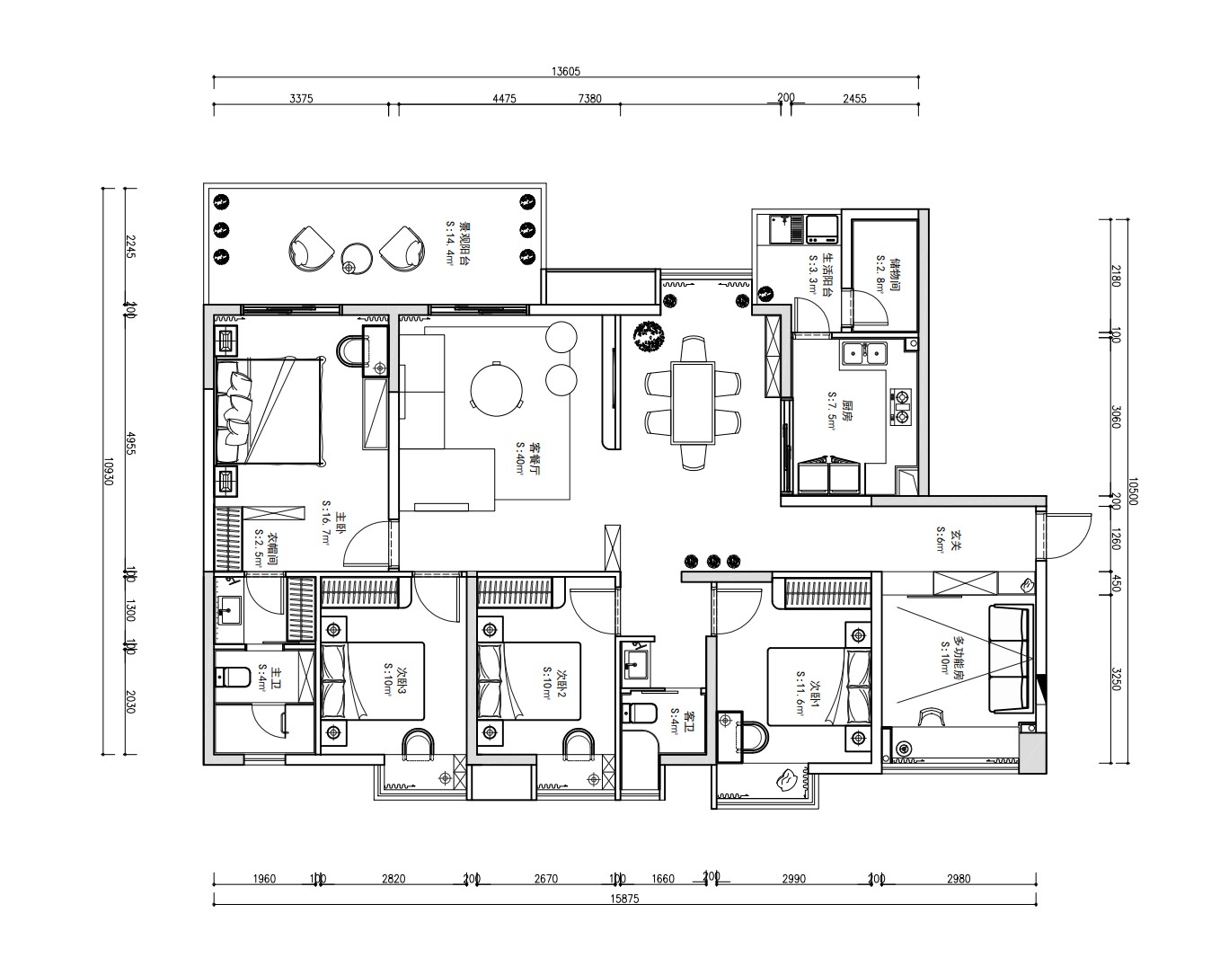
  • 全屋户型图

    家的包容性更多的体现在适变度上,因为它一定是 随着居住者而共生的,会共同经历岁月的更迭,角色 的变化。经得住未来生活的洗礼,随着时间流逝,陪 伴业主并显露出岁月的厚爱。于是我们从诉求出发, 通过结果反推,选择让空间基调简约干净且富有包容 性。这一次的文案是热爱生活的小周一起完成的,她 说:自己参与了新家过程,想用真实感受去叙述。

  • 客厅

    客厅采用现代的装饰物品,整个吊顶采用弧形,使得空间简洁立体

    餐厅玻璃柜体整体使得空间亮度充足,大气

    玄关柜子运用了穿插的设计手法,让柜子不单调的同时又具有特色

    入户玄关做了玻璃屏风,区分了整体的空间,让空间动线明确

  • 卧室

    卧室背景采用木饰面修饰整个墙体,局部才用弧度设计,以及吊灯恰到好处

  • 卫生间

    卫生间才用三段分离,区分各区独立空间,马桶才用壁挂式,方便清洁的同时又不失美感

< >

原木极简·暖调治愈

现代简约·活力红调

极简***·黑白灰质感

现代侘寂风空间设计

89平现代简约设计

沪ICP备13002314号-1 沪B2-20170342 组织机构代码证:66439109—1

中国互联网协会信用评价中心网信认证 网信编码:1664391091 举报电话:400-660-7700

齐家网 版权所有Copyright © 2005- www.jia.com All rights reserved

回到顶部

扫一扫,关注我们

齐家官方微信

温馨提示

取消 同意并继续