问题不能为空!快去添加问题吧!

齐家网 > 装修设计 > 平潭装修 > 平潭装修案例 > 宁静的心灵居所

宁静的心灵居所

85㎡ 普通住宅 北欧 刘兰塑小区
造价:
15万

本案是两室一厅一卫一厨。对于“家”的规划,他们追求精神世界的***纯洁与干净,试图寻找一方能让人静下来的居所,且能承载日常迸发的有趣灵感。

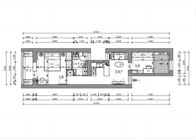
  • 全屋户型图

    本案是两室一厅一卫一厨。对于“家”的规划,他们追求精神世界的***纯洁与干净,试图寻找一方能让人静下来的居所,且能承载日常迸发的有趣灵感。

  • 客厅

    客餐厅+厨房一体设计,开放式厨房+吧台,解决了厨房小以及没有空间放餐桌的问题,厨房利用率更高,人在里边操作也不显得堵,蔷薇粉背景墙,更添一份幸福感。

  • 卧室

    卧室中延伸简约柔美的设计元素,柔美的床品给空间倾注饱满而温柔的气质。床边的壁灯时温暖而充满感染力。纯粹又唯美,让人慢慢在空间中平静下来……

    次卧暂时当多功能室,定制榻榻米+书桌+衣柜,同时兼顾了居住、储物、学习等功能,小小的居室利用率十分高。

    次卧暂时当多功能室,定制榻榻米+书桌+衣柜,同时兼顾了居住、储物、学习等功能,小小的居室利用率十分高。

    次卧暂时当多功能室,定制榻榻米+书桌+衣柜,同时兼顾了居住、储物、学习等功能,小小的居室利用率十分高。

  • 厨房

    客餐厅+厨房一体设计,开放式厨房+吧台,解决了厨房小以及没有空间放餐桌的问题,厨房利用率更高,人在里边操作也不显得堵,蔷薇粉背景墙,更添一份幸福感。

  • 卫生间

    卫生间做了干湿分离设计,由于户型优化,马桶改为了壁挂马桶,卫生间整体更简洁。

    卫生间做了干湿分离设计,由于户型优化,马桶改为了壁挂马桶,卫生间整体更简洁。

    卫生间做了干湿分离设计,由于户型优化,马桶改为了壁挂马桶,卫生间整体更简洁。

< >

简约办工

柔和的色调,温暖的材质

95秋意盎然

65现代风格

温柔奶油风小家

沪ICP备13002314号-1 沪B2-20170342 组织机构代码证:66439109—1

中国互联网协会信用评价中心网信认证 网信编码:1664391091 举报电话:400-660-7700

齐家网 版权所有Copyright © 2005- www.jia.com All rights reserved

回到顶部

扫一扫,关注我们

齐家官方微信

温馨提示

取消 同意并继续