问题不能为空!快去添加问题吧!

齐家网 > 装修设计 > 眉山装修 > 眉山装修案例 > 新华小区

新华小区

78㎡ 两房 现代 新华小区
造价:
9万

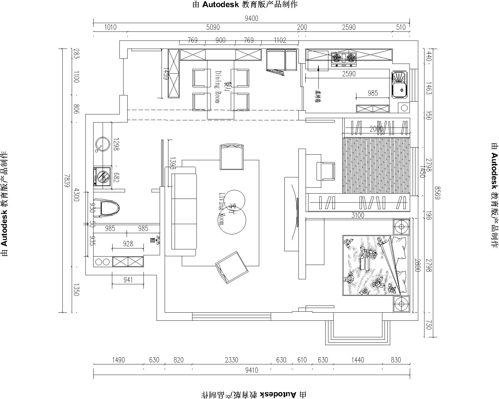
户型属于东南角户型,比较明显的问题是厨房门正对入户门,卫生间面积过大。客厅阳台不合理。

  • 全屋户型图

    户型属于东南角户型,比较明显的问题是厨房门正对入户门,卫生间面积过大。客厅阳台不合理。

  • 客厅

    卫生间干区拆除,做干湿分离。

    将客厅原有墙体拆除,

  • 卧室

    卧室面积过小,除去柜子放置 玄关柜。

  • 厨房

    做西厨区,餐厅做无主灯设计。

  • 卫生间

    卫生间做镜柜,隐藏排水系统。

< >

兰州碧桂园文璟城

兰州保利领秀山

兰州***居住区

兰州万达城

兰州中海寰宇天下

商家信息
森隆万佳装饰

口碑值:

已有人预约

立即询价

设计师信息

叶成鹏首席设计师

工作年限:7年

成功的设计,犹如一首诗歌,充满自由与幻想."设计犹如诗歌一样唯美,在每个空间中,都试图将精致得艺术做到极致,努力实现空间得纯粹与平衡,追求设计得当代性与优雅.

请他帮我设计

沪ICP备13002314号-1 沪B2-20170342 组织机构代码证:66439109—1

中国互联网协会信用评价中心网信认证 网信编码:1664391091 举报电话:400-660-7700

齐家网 版权所有Copyright © 2005- www.jia.com All rights reserved

回到顶部

扫一扫,关注我们

齐家官方微信

温馨提示

取消 同意并继续