问题不能为空!快去添加问题吧!

齐家网 > 装修设计 > 绵阳装修 > 绵阳装修案例 > 以自然之名呼唤家的声音!

以自然之名呼唤家的声音!

120㎡ 四房 原木 都江逸家
造价:
14万

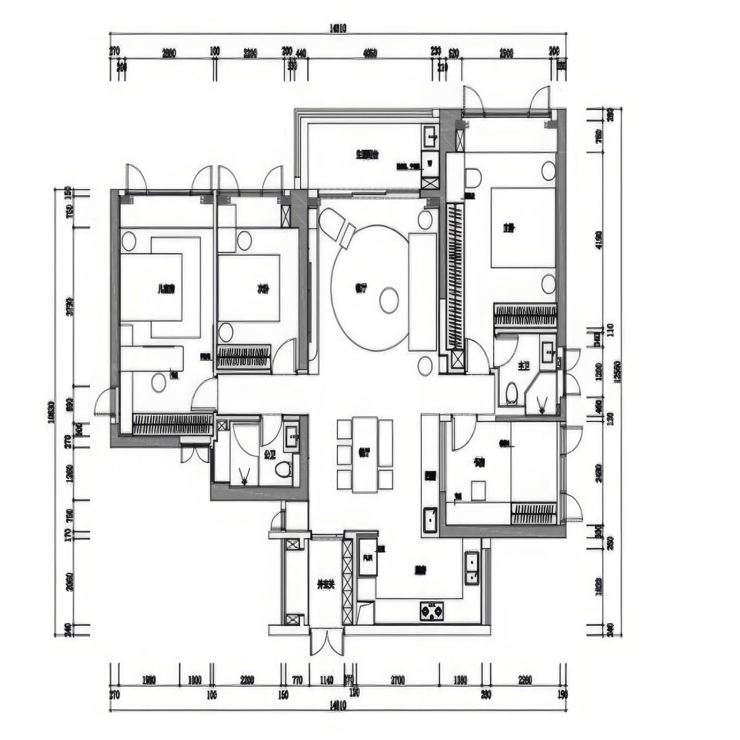
1、打通厨房与外阳台,增加操作空间,在餐厅一侧打造西厨,形成餐厨一体的开放式空间 2、拆除书房内的隔墙,打造榻榻米,若有客人留宿也十分方便 3、将主卧的门洞前移,将卫生间纳入其中,打造套房式卧室 4、将次卧门洞左移,为儿童房的调整提供便利,使动线更为流畅 5、调整儿童房门洞的位置,将一部分过道和一间小卧室纳入儿童房内部,充分利用空间设置衣帽间和学习区。

  • 全屋户型图

    1、打通厨房与外阳台,增加操作空间,在餐厅一侧打造西厨,形成餐厨一体的开放式空间 2、拆除书房内的隔墙,打造榻榻米,若有客人留宿也十分方便 3、将主卧的门洞前移,将卫生间纳入其中,打造套房式卧室 4、将次卧门洞左移,为儿童房的调整提供便利,使动线更为流畅 5、调整儿童房门洞的位置,将一部分过道和一间小卧室纳入儿童房内部,充分利用空间设置衣帽间和学习区。

  • 客厅

    整个客厅以简约实用为主,大面积的留白与木地板的融合,赋予空间温馨干净的质感,客厅与阳台之间采用移门+纱帘相隔,两者保持相互独立,给给生活带来更多的可能性。

    布置炭黑色的沙发,与整体的浅色系色调形成鲜明的碰撞,丰富空间层次。沙发背景墙采用白色格栅板装饰,纵向拉伸客厅的层高。

    客厅地面铺上灰白色的质感地毯,摒弃茶几,释放出更多的活动空间。

  • 卧室

    主卧延续原木+白的主基调,布置暖灰色床单,自然阳光洒入,整个卧室呈现出一种简约朴素的惬意氛围。床头背景墙采用护墙板装饰,与原有墙面形成层次,把精致与简约融入生活里。

    床尾打造衣柜,内侧连接梳妆台,自然惬意的纯白色与浅色原木形成层次,静谧简约的清新感呈现眼前。

  • 厨房

    厨房采用U字形的操作台布局,墙面选择铺贴浅色瓷砖,台面选择同色系岩板材质,保持风格的协调一致又方便清理油污,橱柜采用原木色的柜面,自然的纹理呈现出一种朴素优雅的清新美感。

  • 卫生间

    主卫为经典干湿分离格局,洗手台和马桶区分别位于淋浴区两侧,形成干区,定制悬浮柜,简约又不乏质感,钻石型淋浴房内部打造壁龛,方便收纳洗浴用品,壁龛一侧的通风窗让空间更为清新干爽,每天踏进浴室都会有一个好心情!

< >

成都万朵城名望

领地悦音阁

领地悦音阁

融创至和雅颂

120㎡ 意式风大平层

沪ICP备13002314号-1 沪B2-20170342 组织机构代码证:66439109—1

中国互联网协会信用评价中心网信认证 网信编码:1664391091 举报电话:400-660-7700

齐家网 版权所有Copyright © 2005- www.jia.com All rights reserved

回到顶部

扫一扫,关注我们

齐家官方微信

温馨提示

取消 同意并继续