问题不能为空!快去添加问题吧!

齐家网 > 装修设计 > 南充装修 > 南充装修案例 > 芳梦华苑

芳梦华苑

105㎡ 三房 北欧 芳梦华苑
造价:
12万

三室一厅,105平方。

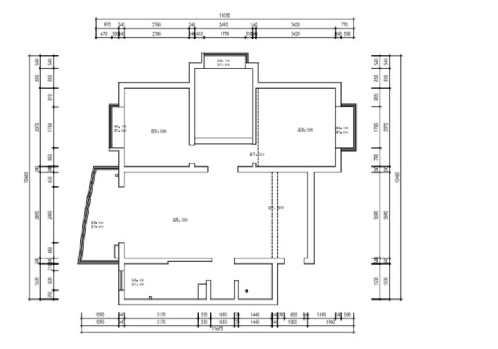
  • 全屋户型图

    三室一厅,105平方。

  • 客厅

    客厅没有繁琐的造型,沙发后面是开放式厨房。简易的吊顶设计,看起来比较舒畅; 黄色皮质软包沙发,保证美观的同时兼具舒适度;窗外的美景加上冬日的阳光,躺在沙发 里小憩一会儿,想想也是非常的惬意。

  • 卧室

    卧室简约而温馨,整体以白色为主色调,背景墙用灰色点缀;木色的桌台,实现合 理利用空间,达到北欧风简约的风格特点。

  • 厨房

    改造后的开放式厨房与客厅相连,显得特别美;三盏不同造型的吊灯看起来非常精 美,改造成开放式厨房不仅整体空间变宽敞,烹饪空间也更舒适。原来厨房转个身都比较为 难。将厨房与客厅之间的墙体拆除,摇身变为开放式厨房,让原本比较紧凑的空间一下变 得宽敞明亮。

  • 卫生间

    卫生间的空间不大,黑色边框的淋浴房看起来比较高档,瓷砖的搭配也非常别致。

< >

黑白极简

现代奶油风装饰

简约美式

法式中古风的家

新锦城拾光云锦

沪ICP备13002314号-1 沪B2-20170342 组织机构代码证:66439109—1

中国互联网协会信用评价中心网信认证 网信编码:1664391091 举报电话:400-660-7700

齐家网 版权所有Copyright © 2005- www.jia.com All rights reserved

回到顶部

扫一扫,关注我们

齐家官方微信

温馨提示

取消 同意并继续