问题不能为空!快去添加问题吧!

齐家网 > 装修设计 > 临沂装修 > 临沂装修案例 > 芶药居现代风格

芶药居现代风格

135㎡ 三房 现代 芶药居
造价:
20万

业主为四口之家一个男孩一个女孩,房间的设计也是围绕两个宝宝的喜好精心设计,本方案围绕现代简约为主题,以简洁明快的设计风格为主调简洁实用是现代风格的基本特点而且还体现出现代社会生活精致与个性,符合现代人的生活品味

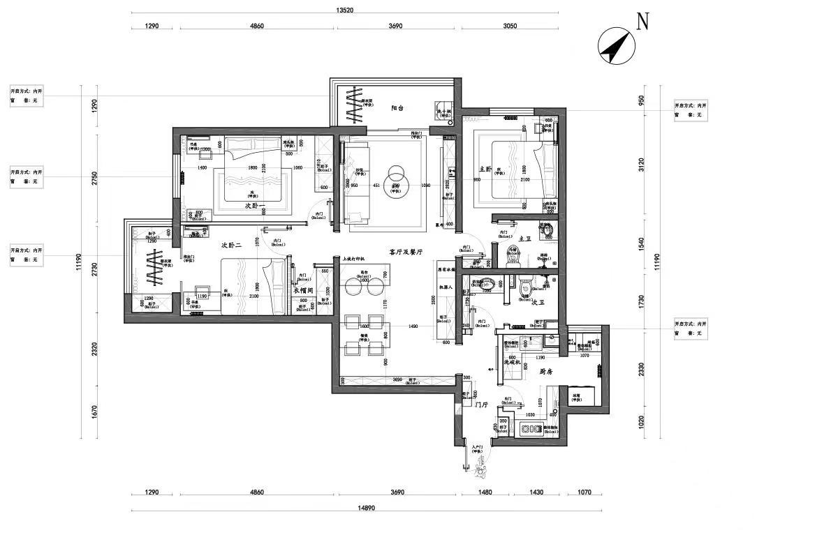
  • 全屋户型图

    业主为四口之家一个男孩一个女孩,房间的设计也是围绕两个宝宝的喜好精心设计,本方案围绕现代简约为主题,以简洁明快的设计风格为主调简洁实用是现代风格的基本特点而且还体现出现代社会生活精致与个性,符合现代人的生活品味

  • 客厅

    客厅采用大三人位沙发的一个按摩椅,整体简约大气墙面挂强侧板可以放一些展示品及工艺沙发,客厅用纱帘和布帘,既遮光有美观

  • 卧室

    粉色与白色搭配占据卧室中***的面积使空间充满了甜美,童真的基调米黄色的地面与其他界面的家具浅色相比具有下沉感拉开了空间的高度

  • 厨房

    厨房采用双L型完美利用了厨房每一个区域整个空间物尽期用

< >

法式复古

田园 原木

现代轻奢

现代简约

现代简约

沪ICP备13002314号-1 沪B2-20170342 组织机构代码证:66439109—1

中国互联网协会信用评价中心网信认证 网信编码:1664391091 举报电话:400-660-7700

齐家网 版权所有Copyright © 2005- www.jia.com All rights reserved

回到顶部

扫一扫,关注我们

齐家官方微信

温馨提示

取消 同意并继续