扫码下载 齐家APP
海量装修干货解救装修小白
扫码下载APP
扫码查看小程序
扫码关注公众号
问题不能为空!快去添加问题吧!
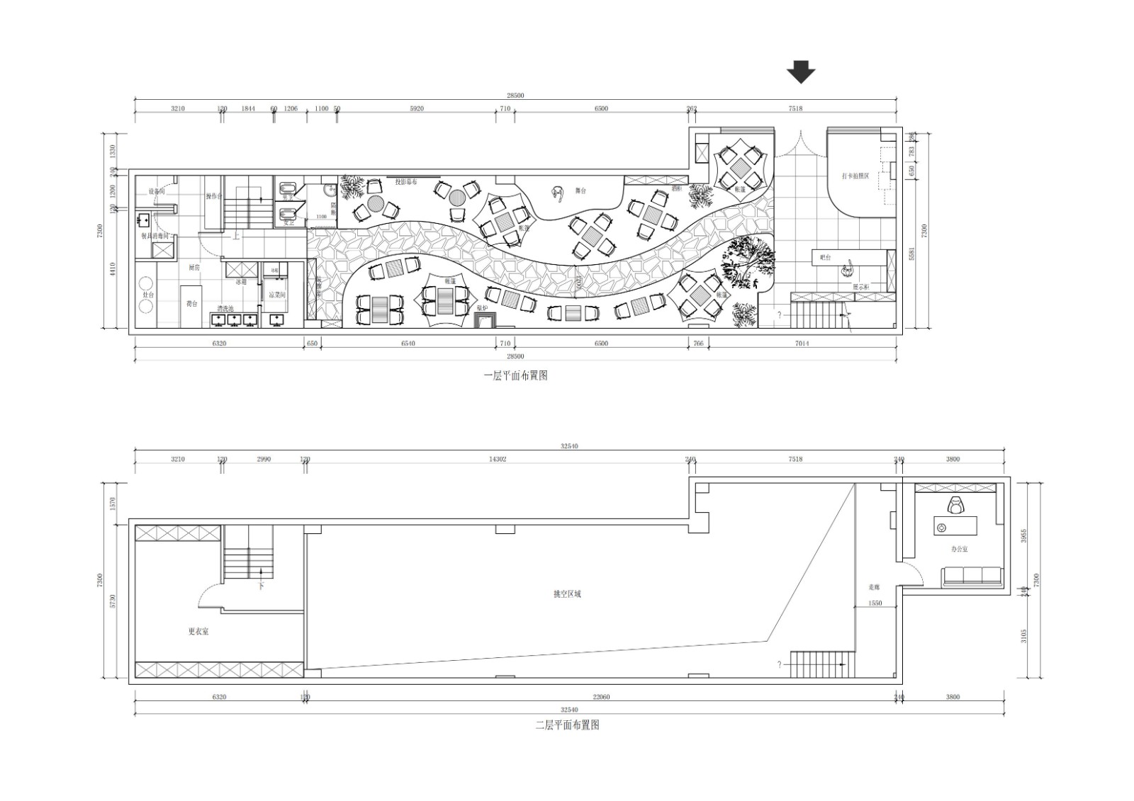
以水泥工业感作为基调,融入当下流行的露营元素,天幕帐篷,折叠桌椅,视觉上形成户外露营的真实感,不受天气影响,下雨天也能让客户沉浸式露营起来
简单的混凝土与绿植构筑出一个新的空间,有机与无机相结合,营造出令人可以放松的空间
原木风格
89㎡现代简约风三居
超理想的25㎡一人居公寓
浅调时光,复刻法式松弛感
热门搜索
口碑值:
已有人预约
口碑值计算方式:
开工(+4分)
预约(+1分)
投诉(-30分)
口碑分值有效期为90天
立即询价
师亚娟首席设计师
工作年限:15年
懂设计更懂生活
请他帮我设计
沪ICP备13002314号-1 沪B2-20170342 组织机构代码证:66439109—1
中国互联网协会信用评价中心网信认证 网信编码:1664391091 举报电话:400-660-7700
齐家网 版权所有Copyright © 2005- www.jia.com All rights reserved
今日已有0用户预约装修
24小时内会有客服人员与您联系,确认您的具体需求
由于申请人数较多,完善资料可更快获取审核服务
扫一扫,关注齐家官方微信号
“您还可以在微信上找到更多装修服务”
扫一扫,关注我们
齐家官方微信
请阅读并同意《齐家用户协议》和《隐私政策》
取消 同意并继续