问题不能为空!快去添加问题吧!

齐家网 > 装修设计 > 临沂装修 > 临沂装修案例 > 现代极简

现代极简

82㎡ 两房 现代简约 和平街
造价:
9.8576万

本案例是一套面积81㎡的两居室,业主是一对年轻小夫妻,经过设计的改造后,整体以极简风格为主,采用大白墙、无主灯……经典耐看、永不过时。

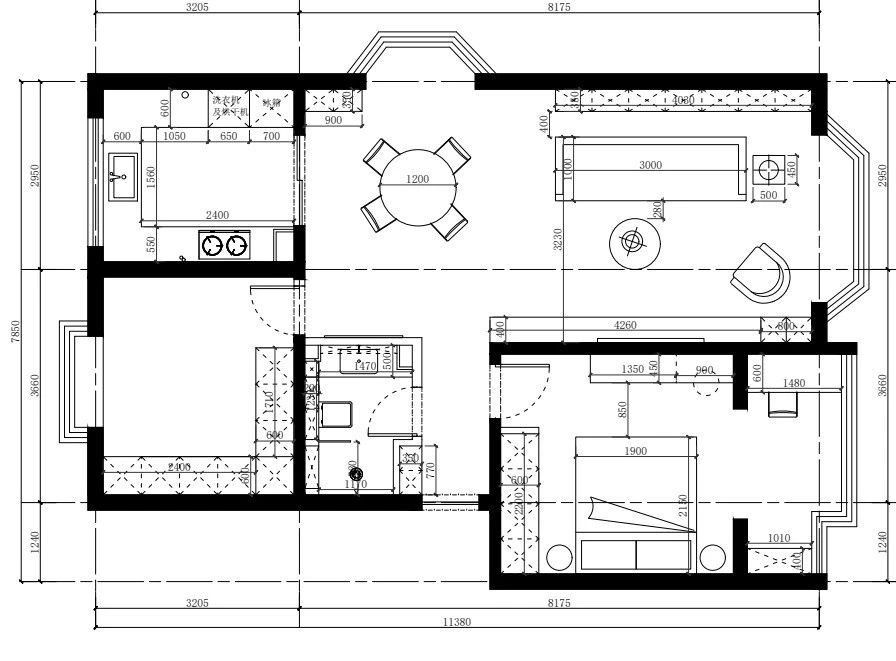
  • 全屋户型图

    本案例是一套面积81㎡的两居室,业主是一对年轻小夫妻,经过设计的改造后,整体以极简风格为主,采用大白墙、无主灯……经典耐看、永不过时。

  • 客厅

    客厅,沙发墙定制了整面墙的收纳柜,柜体进深35cm,提供了充足的收纳空间,布局藏露有序,兼具颜值与实用性。电视墙设置了地柜+悬空吊柜的组合,没有多余的装饰,整洁大方有质感。采用投影幕布代替传统电视,在家也能有影院级享受。

  • 卧室

    主卧,整体以中性色调为主,墙面大面积留白,没有多余的装饰,营造出柔和宁静的睡眠氛围。

  • 厨房

    厨房,定制了U字型的橱柜布局,并将烤箱、洗碗机嵌入进柜体,动线十分合理,让下厨变得更加轻松。将洗衣机、烘干机叠放进高柜中,满足了洗衣晾晒的功能,解放了阳台空间。

  • 卫生间

    卫生间,整体以灰色调为主,设置了悬空浴室柜、吊柜、壁龛,丰富了收纳功能。

  • 餐厅

    出来玄关就是餐厅空间,选用了玻璃圆桌和透明悬臂餐椅,通透又轻盈,搭配飞碟造型的吊灯,营造出灵动大方的就餐氛围。

  • 玄关

    入户过道式玄关,进门左手边定制了嵌入式鞋柜,下面留空放常穿的鞋子,中间留空放随手小物,既美观实用,还不占用入户空间

  • 儿童房

    次卧,定制了两面墙的转角收纳柜,并加入了书桌功能,满足了居住、办公、收纳等功能需求,大大提高了空间利用率。

< >

法式复古

田园 原木

现代轻奢

现代简约

现代简约

沪ICP备13002314号-1 沪B2-20170342 组织机构代码证:66439109—1

中国互联网协会信用评价中心网信认证 网信编码:1664391091 举报电话:400-660-7700

齐家网 版权所有Copyright © 2005- www.jia.com All rights reserved

回到顶部

扫一扫,关注我们

齐家官方微信

温馨提示

取消 同意并继续