问题不能为空!快去添加问题吧!

齐家网 > 装修设计 > 临沂装修 > 临沂装修案例 > 棕榈泉

棕榈泉

130㎡ 大平层 新中式 棕榈泉
造价:
82万

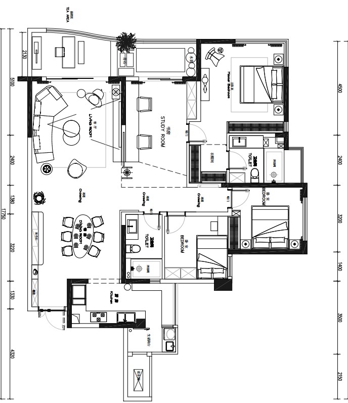
1.宽敞的横厅,空间尺度感更强 2.横厅拥有更大采光面和更好的通风效果 3. 几乎无过道,空间利用率更高

  • 全屋户型图

    1.宽敞的横厅,空间尺度感更强 2.横厅拥有更大采光面和更好的通风效果 3. 几乎无过道,空间利用率更高

  • 客厅

    乳胶漆墙顶通刷配同色实木踢脚线,地面是胡桃木色地板,过门不用过门石,全屋通铺更有整体性

  • 卧室

    喜欢法式浪漫,但又爱新中式的精致 所以,卧室的风格是复古法式与新中式的混搭

  • 厨房

    在保持温馨干净的同时 实用也是很重要 这样就可以***可能性扩展了使用空间

  • 卫生间

    卫生间做了干湿分离,墙面红色乳胶漆撞色设计

< >

现代简约风

巴滨一号

象屿两江御府

九阙府

新东福花园

沪ICP备13002314号-1 沪B2-20170342 组织机构代码证:66439109—1

中国互联网协会信用评价中心网信认证 网信编码:1664391091 举报电话:400-660-7700

齐家网 版权所有Copyright © 2005- www.jia.com All rights reserved

回到顶部

扫一扫,关注我们

齐家官方微信

温馨提示

取消 同意并继续