问题不能为空!快去添加问题吧!

齐家网 > 装修设计 > 上海装修 > 上海装修案例 > 现代原木风

现代原木风

245㎡ 别墅 简约 万科
造价:
33.5万

这套挑空布局的户型,空间层次丰富,挑空区域开阔,下沉式设计独特,打破常规格局,赋予空间更多互动与延伸感,重塑居住体验 。

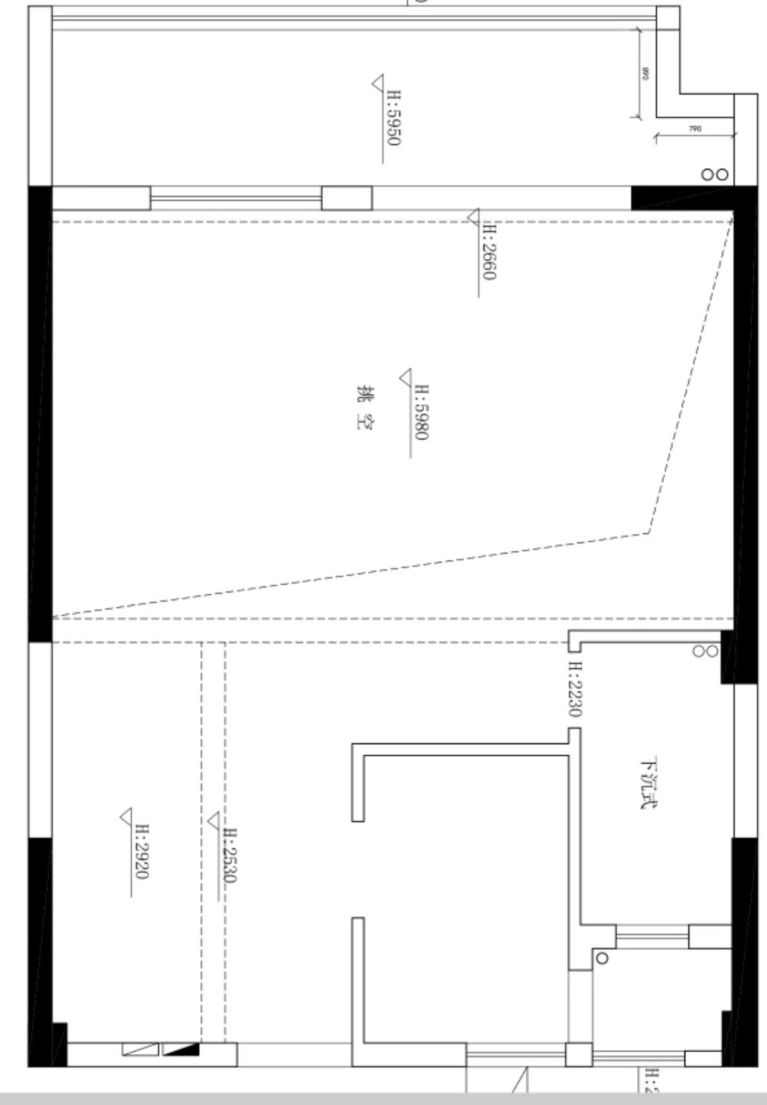
  • 全屋户型图

    这套挑空布局的户型,空间层次丰富,挑空区域开阔,下沉式设计独特,打破常规格局,赋予空间更多互动与延伸感,重塑居住体验 。

  • 客厅

    这套挑空布局的户型,空间层次丰富,挑空区域开阔,下沉式设计独特,打破常规格局,赋予空间更多互动与延伸感,重塑居住体验 。

    复古与现代碰撞,皮质沙发、藤编座椅搭配几何地毯,大窗引光,圆弧门藏韵,在这空间,把慵懒过成诗 。

  • 餐厅

    开放式餐厨客厅一体,原木与金属碰撞,圆形餐桌围合温馨,在这方天地,把烟火日常过成艺术诗行 。

    原木与现代线条交织,圆弧门、艺术吊灯点睛,在这餐厨空间,把烟火气过成艺术感✨

    新中式茶室,木色为底,藤编添韵,一盏茶,静享岁月慢流 。

  • 玄关

    玻璃砖龛框起东方诗意,藤编挂画晕染古韵,于玄关一隅,以细节铺陈空间的雅致与温度,诠释家的高阶审美 。

< >

法式复古风

新中式

现代原木风

现代简约设计风格

现代简约设计风格

沪ICP备13002314号-1 沪B2-20170342 组织机构代码证:66439109—1

中国互联网协会信用评价中心网信认证 网信编码:1664391091 举报电话:400-660-7700

齐家网 版权所有Copyright © 2005- www.jia.com All rights reserved

回到顶部

扫一扫,关注我们

齐家官方微信

温馨提示

取消 同意并继续