问题不能为空!快去添加问题吧!

齐家网 > 装修设计 > 绍兴装修 > 绍兴装修案例 > 87平老房改造

87平老房改造

87㎡ 小户型/一房 舒适 西山奥园
造价:
20万

面对户型采光差、动线不合理、储物空间不足等诸多难题,设计以浪漫的“法式中国风”为笔触,在不进行大拆大改的前提下,通过精准的布局优化与软装搭配,实现了空间的华丽逆袭。

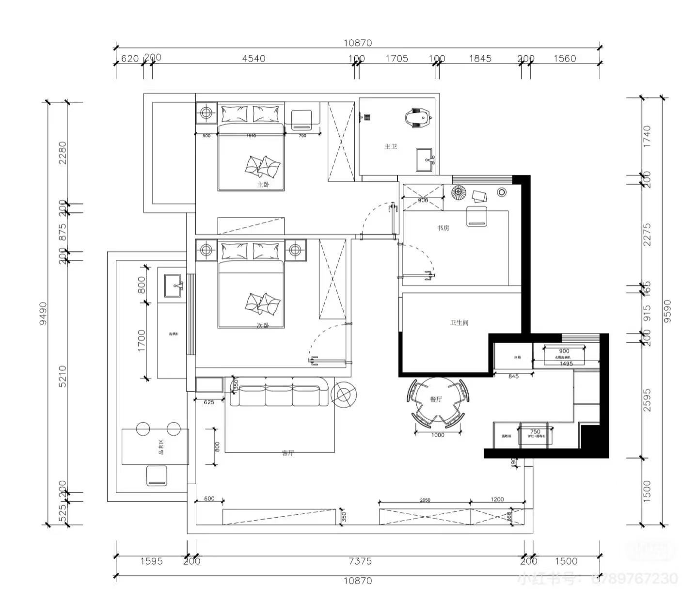
  • 全屋户型图

    面对户型采光差、动线不合理、储物空间不足等诸多难题,设计以浪漫的“法式中国风”为笔触,在不进行大拆大改的前提下,通过精准的布局优化与软装搭配,实现了空间的华丽逆袭。

  • 客厅

    客餐厅采用灵活的围合式家具布局,营造出亲密温馨的家庭氛围。

    她和孩子时常在壁炉旁阅读,于圆桌旁用餐,生活的仪式感无处不在。每一处细节都承载着他们对生活的热爱,这个小小的家,盛满了母子俩的欢声笑语,成为他们迈向崭新每***的温暖起点。

  • 卧室

    改造中,通过改变次卧门洞方向,巧妙“偷”出独立家政区与玄关柜; 利用玻璃门与拱形元素,为幽暗走廊引入光线并赋予艺术感;

    改造中,通过改变次卧门洞方向,巧妙“偷”出独立家政区与玄关柜; 利用玻璃门与拱形元素,为幽暗走廊引入光线并赋予艺术感;

  • 厨房

    面对户型采光差、动线不合理、储物空间不足等诸多难题,设计以浪漫的“法式中国风”为笔触,在不进行大拆大改的前提下,通过精准的布局优化与软装搭配,实现了空间的华丽逆袭。

  • 卫生间

    面对户型采光差、动线不合理、储物空间不足等诸多难题,设计以浪漫的“法式中国风”为笔触,在不进行大拆大改的前提下,通过精准的布局优化与软装搭配,实现了空间的华丽逆袭。

< >

原木奶油温馨治愈

摩登奶油

简约风格

现代简约

奶油风

商家信息
苏技装饰

口碑值:

已有人预约

立即询价

设计师信息

赵颖慧首席设计师

工作年限:6年

擅长类型:新中式,现代轻奢,简约北欧 座右铭:诚交天下客,誉从信中来 设计心语:品质成就未来 设计风格:新中式,现代轻奢,简约北欧,美式,归本主义风格…

请他帮我设计

沪ICP备13002314号-1 沪B2-20170342 组织机构代码证:66439109—1

中国互联网协会信用评价中心网信认证 网信编码:1664391091 举报电话:400-660-7700

齐家网 版权所有Copyright © 2005- www.jia.com All rights reserved

回到顶部

扫一扫,关注我们

齐家官方微信

温馨提示

取消 同意并继续