扫码下载 齐家APP
海量装修干货解救装修小白
扫码下载APP
扫码查看小程序
扫码关注公众号
问题不能为空!快去添加问题吧!
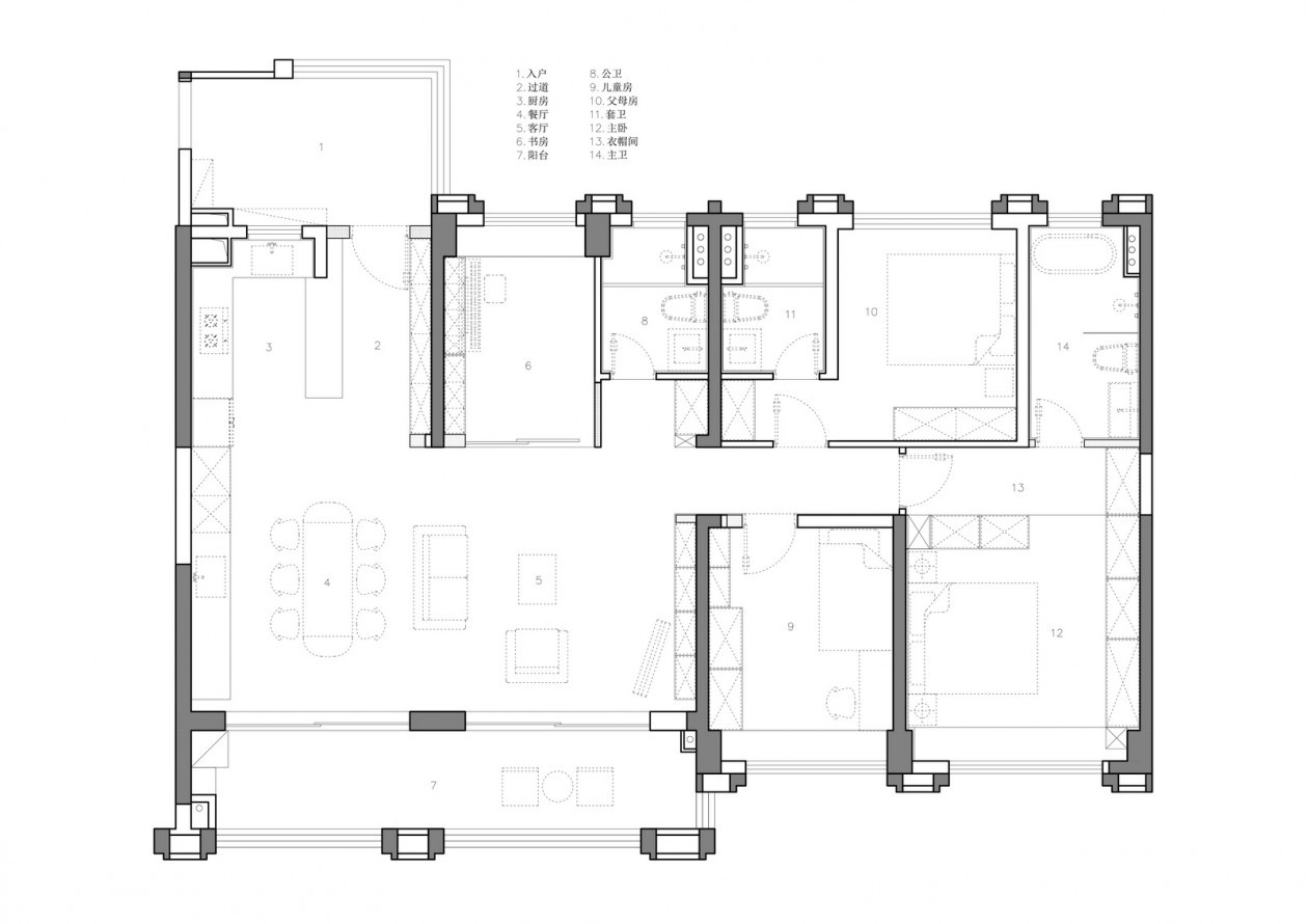
标准三房+开放式书房
微水泥覆盖原有的瓷砖与天然的柚木木皮形成强烈对比
主卧设计了一个简约白色柜体
用木饰面包裹的梳妆台与飘窗台
橱柜一直延伸到餐厅,墙体的铝制隔板看起来轻盈,承重力很强
微水泥上墙,地面铺水磨石地砖,玻璃作为干湿分离的隔断
纯白空间带给人一种不染杂质的感觉
儿童房以简洁白色为主
一层的床铺直接靠地板,对六岁以下的孩子更安全
主卧旁边的步入式衣帽间
玉滨城 现代风
航空别墅-法式
漳州港海湾新城
金缘湾花园
现代轻奢
热门搜索
口碑值:
已有人预约
口碑值计算方式:
开工(+4分)
预约(+1分)
投诉(-30分)
口碑分值有效期为90天
立即询价
温国峰
工作年限:5年
严格施工,保质保量
请他帮我设计
沪ICP备13002314号-1 沪B2-20170342 组织机构代码证:66439109—1
中国互联网协会信用评价中心网信认证 网信编码:1664391091 举报电话:400-660-7700
齐家网 版权所有Copyright © 2005- www.jia.com All rights reserved
今日已有0用户预约装修
24小时内会有客服人员与您联系,确认您的具体需求
由于申请人数较多,完善资料可更快获取审核服务
扫一扫,关注齐家官方微信号
“您还可以在微信上找到更多装修服务”
扫一扫,关注我们
齐家官方微信
请阅读并同意《齐家用户协议》和《隐私政策》
取消 同意并继续