问题不能为空!快去添加问题吧!

齐家网 > 装修设计 > 西安装修 > 西安装修案例 > 极简的治愈力量

极简的治愈力量

160㎡ 大平层 简约 富基广场
造价:
11.5万

一个自由的居所,应该是放纵、散漫、不受约束的。生命短促,没有时间可以浪费,一切随心自由才是应该努力去追求的。

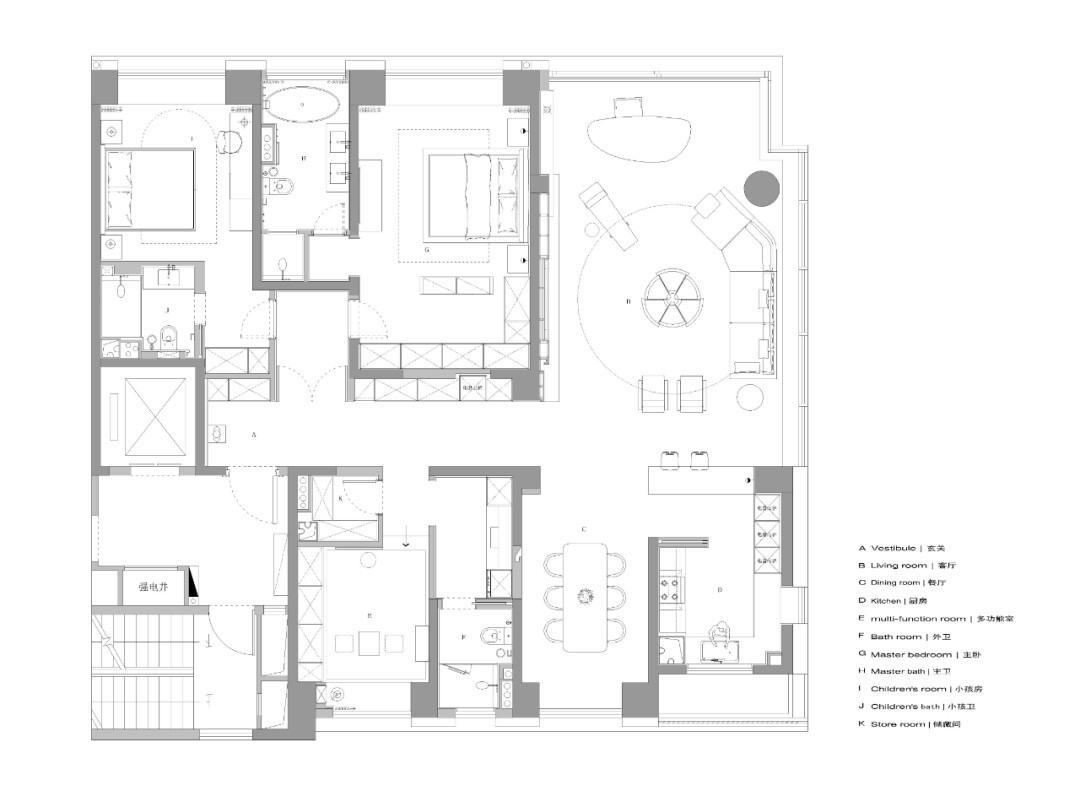
  • 全屋户型图

    一个自由的居所,应该是放纵、散漫、不受约束的。生命短促,没有时间可以浪费,一切随心自由才是应该努力去追求的。

  • 客厅

    于极简中融合光影, 于几何中落入方圆。

    大片落地窗形成空间的延伸感,光影的变换被纳入具象的氛围体验中,凭借一盏半圆形落地灯的点缀,安静优雅气氛渐浓。在极简的设计理念之中,自然的融入使空间充满了设计哲学的生活美感。

  • 卧室

    而归家的仪式感 早已藏在你日常摩挲使用的器物里 藏在被风吹起的纱帘里 藏在家的宁静气息里

    卧室是私密的空间,且功能纯粹。用极简但精致的设计体现生活品质主义。一旁由Patricia Urquiola设计的Husk休闲椅给人放松,柔软的包覆感。 低饱和基调,在空间中晕染开来简约和舒适。

  • 厨房

    厨房跟餐厅一体,餐桌它的线条干脆利落,在视觉上表现为沉稳而内敛的艺术感。皮革包裹设计令其具备一定的体量感,配合餐桌形成轻重的平衡。

  • 卫生间

    克制的平衡,不仅在简约的框架上,更体现在明与暗的细微对比之中。细腻的肌理处理,在满足视觉感受之外给人平和安静的共鸣。沉淀出一个使人内心安定的空间力量。

< >

海珠自建房

番禺三居室

荔湾自建房

黄埔自建房

乐意居花园

沪ICP备13002314号-1 沪B2-20170342 组织机构代码证:66439109—1

中国互联网协会信用评价中心网信认证 网信编码:1664391091 举报电话:400-660-7700

齐家网 版权所有Copyright © 2005- www.jia.com All rights reserved

回到顶部

扫一扫,关注我们

齐家官方微信

温馨提示

取消 同意并继续